园林景观园建工程量计算&识图
CAD快速看图
5天前
|
3328阅读
3
赞
计算景观园建工程量,提前了解园建工程计算规则,如何实现快速完成,下面小编介绍几个实用小技巧,结合CAD快速看图的面积测量工具进行工程量计算。
一、了解园建工程计算规则
1、清单计价规范,块料面层计算以“㎡”为单位,工程内容包含基层清理,砂浆制作、运输,抹找平层,面层铺设,嵌缝,刷防护材料,酸洗、打蜡等项目。

2、楼地面装饰工程,定额计算说明中,石材厚度定额按30mm内考虑,若超过30mm,没超过5mm,人工费乘以系数1.1,计算铺装面工程量的时候,按照石材厚度,分类统计工程量。

3、以广东省房屋建筑与装饰工程综合定额(2018)为例,定额说明中,各类铺装面块料面层均平方米为计算单位,扣除凸出地面构筑物、设备基础、室内管道、地沟等所占面积。不扣除间壁墙和0.3㎡以内的柱、垛、附墙烟囱及孔洞所占的面积。

二、识图
首先看设计说明,关于铺装面的相关信息,如:安装标高,基层种类,消防登高面消防车道石材厚度,做法等等。
1、设计说明中所列标高,在计算铺装面工程量的时候,主要涉及FL:完成面标高,SL:结构顶板标高,FS:覆土完成面标高。

2、铺装标准图中,会显示铺装做法,一般分为有地库和无地库铺装面的做法,本工程为小区园林景观,有地库。小编为方便大家清晰看到做法,只截取有地库做法给大家,有地库做法又分人行道铺装做法和消防车道做法,通过看图,可以了解到以下信息:
人行道铺装做法(有地库): 消防车道铺装做法(有地库):
100厚C15混凝土 150厚C20混凝土
100厚6%水泥石粉垫层 150厚6%水泥石粉垫层
主要差异体现在基层混凝土和石粉垫层做法差异,算量的时候也要区分。

3、各类竖向标高,看景观竖向平面图

4、铺装面各种石材种类看景观铺装面图

5、消防车道位置,看消防车道平面图,线型标注为XF,其中还有登高面,这里要注意,消防登高面的铺装基层做法同消防车道。

二、案例操作
以铺装面AI为例展开讲解,规格为900x300x15/18厚,其中15代表人行道用15mm厚的,18代表人行道用18mm厚的。

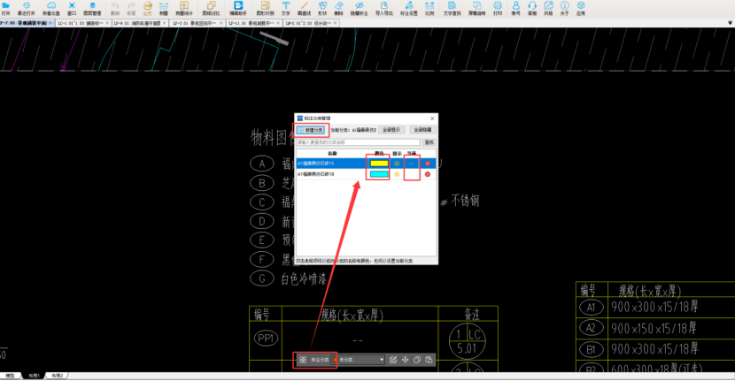
1、点击标注分类,新建分类福鼎黑仿石砖15/18,自由选择标注颜色,点击置于当前。

2、算量要选择图纸框线完整的布局中测量,首先要调整图纸比例,保证布局中的比例和模型中一致。同一位置,用测量对齐功能,量出模型中1840mm,布局中7.36mm,数据不一致,要调整。


2、点击比例,选取布局中同位置线段,输入1840mm比例就调好了,再用测量对齐功能量取数值为1840mm
备注:每一步操作,系统也会给出提示,跟着提示走便可方便快捷操作。


3、测量,点击测量面积,根据提示“点击左键选择面积的第一个脚点”,往下操作,便可测出面积25.105平方米。

3、测量汇总,选择测量统计,勾选按标注分类进行过滤,勾选A1福鼎黑仿石砖18,确认,我们得出A1福鼎黑仿石砖18mm面积为:180.47㎡,A1福鼎黑仿石砖15mm面积为:159.69㎡。

4、由此,我们便得出A1福鼎黑仿石砖工程量:
4.1 A1福鼎黑仿石砖15mm:159.69㎡
100厚C15混凝土:159.69*0.1=15.97m³
100厚6%水泥石粉垫层:159.69㎡
4.2 A1福鼎黑仿石砖18mm面积为:180.47㎡
150厚C20混凝土:180.47*0.1=18.05m³
150厚6%水泥石粉垫层:180.47㎡
4.3 土方工程量,根据前面讲的竖向标高和基层做法,我们算出人行道位置回填土深度:20.1(FL)-19(SL)-基层(0.1+0.1)-石材厚度0.015-找平层0.03=0.855m
人行道回填土工程量:0.855*159.69=136.53m³
4.4 土方工程量,根据前面讲的竖向标高和基层做法,我们算出消防车道位置回填土深度:20.1(FL)-19(SL)-基层(0.15+0.15)-石材厚度0.018-找平层0.03=0.0.752m
人行道回填土工程量:0.752*180.47=135.7m³
4.5 地下室顶板做法,聚脂无纺布隔砂层(250g/m2):180.47+159.69=340.16㎡,30厚成品蓄排水板:180.47+159.69=340.16㎡
至此,园林景观园建铺装面石材A1福鼎黑仿石砖设计工程量就计算完了,本文介绍了园林景观铺装面算量规则,识图侧重点,通过实际案例结合CAD快速看图测量面积功能,高效完成铺装面工程量计算。
共28条评论
好用的、轻量级DWG看图软件!
已发表888篇文章
头条热榜 换一换
- 【马年】一马当先·我的开年第一标
- 扎心了!这些造价人的“至暗时刻”,你经历过几个?
- “2025年,超760万人逃离建筑行业了!” 逃离的是哪些人,这些人都去做什么了
- 一马当先|2026造价人第一标:招标文件到手,我是这么牵头、分工、研读的(附中建实战案例)
- 1 2026年工程服务取费标准完整版|收藏备查,告别议价踩坑
- 2 住建部明确:这 6 种情况不算 “挂证”!2026 年严打风暴下,别再被误判!
- 3 定额3∶7灰土的含量为何不是3∶7比? 简单的问题为何成了全国性的疑难杂症
- 4 造价按9%、发票开6%,这3%差价到底归谁?造价人必看,别再被甲方财务问懵!
- 5 湖北率先“炸掉”定额!2026新规震撼建筑业,企业生死大洗牌
- 6 定额组价既然偏离市场价,为何还不废除?
- 7 图纸“说明”了就等于“约定”了吗? ——总价合同下的超前钻勘察费争议解析
- 8 基坑支护从图审到结算对量核心要点——中建五局一线实战经验分享
- 9 为什么住宅楼一般建到33层就不建了?
- 10 害人的税率
- 11 终于!2026年一级造价工程师考试时间确定!
- 12 园林景观园建工程量计算&识图
- 13 “合价包干”的措施费,当真一成不变吗? ——基于某综合开发项目结算争议的深度剖析
- 14 刚入行的小白一定要知道的“造价审计流程及技巧”
- 15 0.8m 电缆沟 2:1 放坡该不该算?10 位造价专家竟 9 个答错!
- 16 一马当先|我的开年第一标 · 复盘万把来元的市场价,为何编出了三万多的控制价?
- 17 结算、决算、施工签证、工程量、审计计算难点解答汇总
- 18 “情理”与“法理”的交融与界分:新定额能否成为调整合同工期的“救命稻草”?
- 19 如何控制工程造价全过程
- 20 一马当先|开年首篇:湿陷性黄土地区市政砖砌检查井施工工艺、预算编制、成本控制三位一体总结
- 21 从《2025年建筑业发展统计分析》数据,看“冰火交融”建筑业的新变局
- 22 关于【广东】粤标定函【2025】22号文中费率计价费用组成划分调整部分功能使用的说明
- 23 一马当先丨AI重构造价咨询:从算量计价到价值赋能的转型
- 24 有一种大神:可以不用电子版CAD图纸做造价
- 25 工程竣工结算的审计项目内容
- 26 “不平衡报价”的翻车现场:低价中标后的成本失控
- 27 墙柱面工程劳务分包价格
- 28 脚手架工程劳务分包价格
- 29 造价过程中的这些“价”你都搞清没?
- 30 年后第一周:一级造价师核心考点压缩版整理
- 31 政府投资项目建设单位工程款(预付款、进度款、结算款、质保金)支付指南
- 32 陕西2025新计价结算实战答疑系列(一)
- 33 未结合定额人材机组成,重复套用定额
- 34 一级造价师考试高频考点的结构化整理与复习应用
- 35 一根电渣压力焊,道尽工程人在质量、人情与定额间的半生挣扎
- 36 招投标文件对不上怎么办?24清单标准下的避坑指南!
- 37 “措施费合价包干”条款下,专业工程暂估价的措施费应如何计取?
- 38 装配式建筑的造价管控:从预制构件到现场装配
- 39 “不接受不平衡报价”,一句空洞约定就能推翻已标价工程量清单吗?
- 40 “十五五”电力规划核心解读与工民建造价转行电力实操指南(一)
- 41 甲供材与乙供材的造价界面管控:从采购到结算的闭环管理
- 42 如何应对工程结算审计过程中哪些佐证资料
- 43 一马当先——审计结论≠结算价格:工程结算应回归合同本源与民事合意
- 44 钢筋混凝土工程劳务分包指导价
- 45 一马当先启新程|造价新手首担开年第一标,成长进阶+成本报价复盘全解析#马年开年第一标
- 46 从“包干争议”到“动态调整”--基于2024计价规范的措施费管理变革
- 47 真空井点降水劳务分包指导价
- 48 低价中标后如何控制成本
- 49 博弈成本与审计
- 50 设计变更与工程签证的边界划分及造价争议化解