软件下载
线下培训
软件教程
智能客服
购买咨询
建筑课堂
答疑解惑
新干线头条
资料下载
技能大赛
答疑专家入驻
课程讲师入驻
行业媒体入驻
设计专区
造价专区
施工专区
联系我们
合作推广
隐私政策
IKARI 2025-03-21 19:29:53 | 广西 土建 | 446查看 2回答
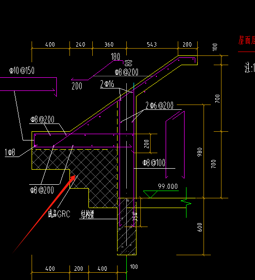
如图,剪头这个位置原是GRC构件,现在和结构一起现浇,请问,是女儿墙以外都按悬挑板(包括板上面的一小部分),女儿墙以内的斜板按有梁板吗?还是怎么套定额比较合理
2025-03-21 19:30:09 补充
我的答案 答题人必看《优秀回答指南》
asfsdfsadfdsf
补充或更正我的问题
完善我的答案 答题人必看 《优秀回答指南》
全部回答 (2) 首答仅用{{minutesHtml}}
陈工 铂金专家
答题: 211112 被赞: 51050
按悬挑板套清单和定额。
2025-03-21 19:33:13
身边 专家
答题: 4147 被赞: 1134
个人理解,应按挑檐/挑板及类似定额。
有梁板肯定是不对的
2025-03-21 21:08:06
斜屋面异型女儿墙怎么绘制
屋面标高是人字形两边放坡屋面,女儿墙用什么构件定义?
屋面斜板女儿墙如何绘制
这种屋面女儿墙斜板如何绘制
屋面女儿墙套定额子目
如图,斜板外500和1100的板,斜板及线条造型都是一次浇筑,请问这两个斜屋面大样中,是整体套有梁板还是分开几个子目
请教女儿墙斜板应该套什么定额(见下图)
请教屋面板上翻的女儿墙斜板和斜板上的顶梁套什么定额计算?
如果没找到您想要的答案,试试直接提问吧!
尊敬的“{{nickname}}”,您好!
答疑解惑——建筑行业领先的互动问答平台
答疑解惑——建筑业(造价行业)领先的互动问答平台
您的问题已发布您的回答已提交
大多数问题会在7分钟内获得回答,感谢您的耐心等待
恭喜获得答题积分奖励,帮助他人,成就自己。
采纳优质答案,更可获得积分,兑换礼品哦!
高质量答案更易被采纳,获得额外高额积分奖励!
专家榜
数据更新时间 : 2026-03-06
天降福运!积分,经验值等福利在等着你哟,快来签到吧
还有0条追问正在审核中,请稍后回来查看