-
san
2018-03-22 17:39:14
|
广西
土建
|
5655查看
4回答
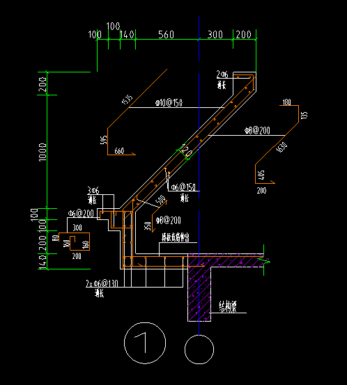
屋面斜板女儿墙如何绘制
这种屋面女儿墙斜板如何绘制
全部回答
(4)
首答仅用{{minutesHtml}}
-
三点定义斜板试试
2018-03-22 17:40:23
-
用板并用三点定义斜板,钢筋就是用板受力面及底筋定义布置,设计有要求弯折时,可以在钢筋属性的左或右弯折中输入代替。
2018-03-22 17:42:05
-
这个屋面斜板女儿墙,下部采用异形梁定义绘制(红色),斜的那块采用斜板布置(黄色),顶上采用异形梁定义布置(红色)。

2018-03-22 17:43:37
还有 1 条答案正在审核中,请稍后回来查看






还有0条追问正在审核中,请稍后回来查看