软件下载
线下培训
软件教程
智能客服
购买咨询
建筑课堂
答疑解惑
新干线头条
资料下载
技能大赛
答疑专家入驻
课程讲师入驻
行业媒体入驻
设计专区
造价专区
施工专区
联系我们
合作推广
隐私政策
IKARI 2025-03-12 18:15:29 | 广西 土建预算 | 338查看 1回答
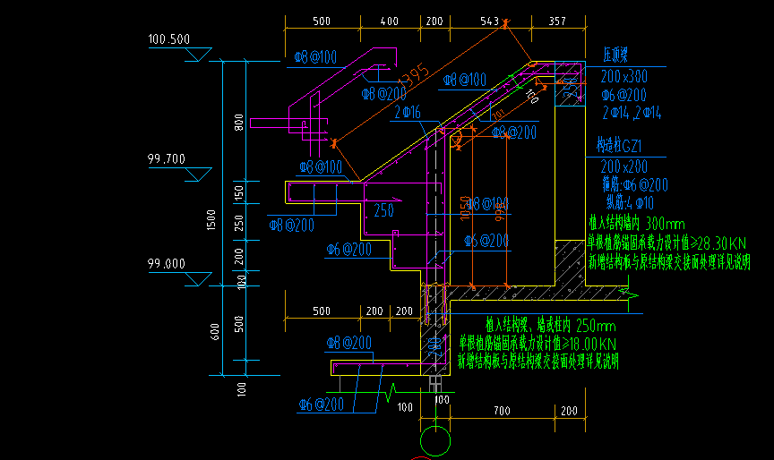
如图,斜板外500和1100的板,斜板及线条造型都是一次浇筑,请问这两个斜屋面大样中,是整体套有梁板还是分开几个子目
我的答案 答题人必看《优秀回答指南》
asfsdfsadfdsf
补充或更正我的问题
完善我的答案 答题人必看 《优秀回答指南》
全部回答 (1) 首答仅用{{minutesHtml}}
爱山 专家
答题: 4055 被赞: 516
1、截图1这种结构主要是异型,500的悬挑板,斜面1395按斜屋面,998按栏板,这样拆解比较合适;截图二一样;
2、也可以全部按挑檐计算。
2025-03-13 07:42:07
斜屋面女儿墙套定额
如图,剪头这个位置原是GRC构件,现在和结构一起现浇,请问,是女儿墙以外都按悬挑板(包括板上面的一小部分),女儿墙以内的斜板按有梁板吗?还是怎么套定额比较合理2025-03-21 19:30:09 补充
屋面600高女儿墙和2层不上人屋面的650高女儿墙
请问,屋面600高女儿墙和2层不上人屋面的650高女儿墙,套什么清单定额,套直行墙还是栏板呀?
屋面混凝土女儿墙这样套清单合适吗
这种屋面栏板套什么定额呀,算是女儿墙吗,套直形墙吗
屋面这里女儿墙要套脚手架吗
如果没找到您想要的答案,试试直接提问吧!
尊敬的“{{nickname}}”,您好!
答疑解惑——建筑行业领先的互动问答平台
答疑解惑——建筑业(造价行业)领先的互动问答平台
您的问题已发布您的回答已提交
大多数问题会在7分钟内获得回答,感谢您的耐心等待
恭喜获得答题积分奖励,帮助他人,成就自己。
采纳优质答案,更可获得积分,兑换礼品哦!
高质量答案更易被采纳,获得额外高额积分奖励!
专家榜
数据更新时间 : 2026-03-06
天降福运!积分,经验值等福利在等着你哟,快来签到吧
还有0条追问正在审核中,请稍后回来查看