软件下载
线下培训
软件教程
智能客服
购买咨询
建筑课堂
答疑解惑
新干线头条
资料下载
技能大赛
答疑专家入驻
课程讲师入驻
行业媒体入驻
设计专区
造价专区
施工专区
联系我们
合作推广
隐私政策
上心 2018-08-03 22:31:05 | 广西 土建 | 3150查看 2回答
我的答案 答题人必看《优秀回答指南》
asfsdfsadfdsf
补充或更正我的问题
完善我的答案 答题人必看 《优秀回答指南》
全部回答 (2) 首答仅用{{minutesHtml}}
endy 专家
答题: 3584 被赞: 1216
2018-08-03 22:50:24
希望 专家
答题: 79093 被赞: 10885
2018-08-04 07:11:06
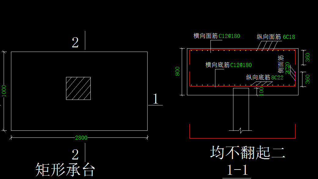
桩承台钢筋怎么输入
右边和左边的2号钢筋不一样的。不都是分布筋吗?1号是桩间连接筋,那4号又是什么钢筋?怎么在软件输入?3号是侧面钢筋是吗补充问题:用筏板定义,那面筋12C16和底筋12C22怎么布置啊?
承台钢筋输入
如图承台钢筋如何输入?
手动输入承台梁钢筋
有没有人会手动输入这个承台梁的钢筋呀?教教我叭
这样的桩承台钢筋怎么输入呢
如果没找到您想要的答案,试试直接提问吧!
尊敬的“{{nickname}}”,您好!
答疑解惑——建筑行业领先的互动问答平台
答疑解惑——建筑业(造价行业)领先的互动问答平台
您的问题已发布您的回答已提交
大多数问题会在7分钟内获得回答,感谢您的耐心等待
恭喜获得答题积分奖励,帮助他人,成就自己。
采纳优质答案,更可获得积分,兑换礼品哦!
高质量答案更易被采纳,获得额外高额积分奖励!
专家榜
数据更新时间 : 2026-03-05
天降福运!积分,经验值等福利在等着你哟,快来签到吧
还有0条追问正在审核中,请稍后回来查看