-
半吊子
2023-05-17 18:09:27
|
广西
土建土建计量GTJ
|
841查看
4回答
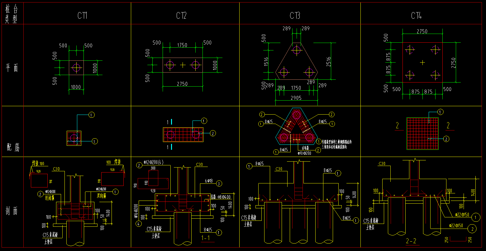
这样的桩承台钢筋怎么输入呢

全部回答
(4)
首答仅用{{minutesHtml}}
-
CT1,CT2,梁式配筋承台
CT3,CT4板式配筋承台
2023-05-17 18:11:39
-
你好:



2023-05-17 18:13:30
-
最左边的环式配筋,左二是梁式配筋,左三,是三桩承台选择三桩承台一配筋形式,在桩间连接钢筋中输入三边的桩间连接钢筋,其上的分布筋在其他钢筋中输入.右边的选择均不翻 起二的配筋形式.在底筋中输入对应的钢筋信息.
2023-05-17 18:32:32
还有 1 条答案正在审核中,请稍后回来查看






还有0条追问正在审核中,请稍后回来查看