软件下载
线下培训
软件教程
智能客服
购买咨询
建筑课堂
答疑解惑
新干线头条
资料下载
技能大赛
答疑专家入驻
课程讲师入驻
行业媒体入驻
设计专区
造价专区
施工专区
联系我们
合作推广
隐私政策
砼莫 2021-01-28 21:27:47 | 广西 土建土建计量GTJ | 1083查看 1回答
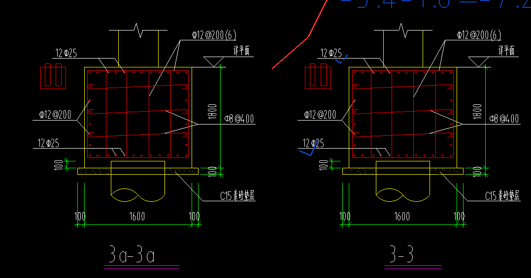
有没有人会手动输入这个承台梁的钢筋呀?教教我叭
我的答案 答题人必看《优秀回答指南》
asfsdfsadfdsf
补充或更正我的问题
完善我的答案 答题人必看 《优秀回答指南》
全部回答 (1) 首答仅用{{minutesHtml}}
GXZ 钻石专家
答题: 243391 被赞: 48272
就是要定义的属性中对应的输入,也就是照本宣科吧。
首次提交 2021-01-28 21:30:15 最近修改2021-01-28 21:30:15 (修改过1次)
承台钢筋输入
承台钢筋怎么输入
如下图承台钢筋怎么输入补充问题:我这样子输入是否正确?
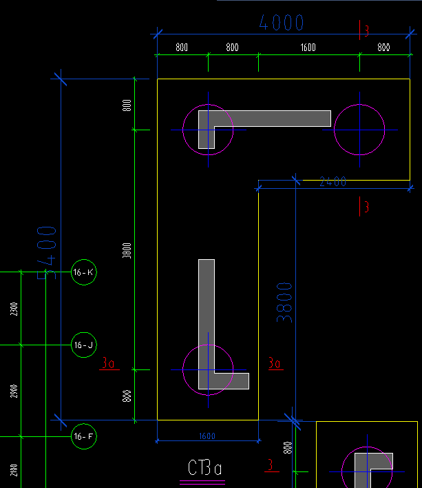
桩承台钢筋怎么输入
右边和左边的2号钢筋不一样的。不都是分布筋吗?1号是桩间连接筋,那4号又是什么钢筋?怎么在软件输入?3号是侧面钢筋是吗补充问题:用筏板定义,那面筋12C16和底筋12C22怎么布置啊?
如图承台钢筋如何输入?
承台梁用广联达2021怎么布置钢筋怎么输入
如果没找到您想要的答案,试试直接提问吧!
尊敬的“{{nickname}}”,您好!
答疑解惑——建筑行业领先的互动问答平台
答疑解惑——建筑业(造价行业)领先的互动问答平台
您的问题已发布您的回答已提交
大多数问题会在7分钟内获得回答,感谢您的耐心等待
恭喜获得答题积分奖励,帮助他人,成就自己。
采纳优质答案,更可获得积分,兑换礼品哦!
高质量答案更易被采纳,获得额外高额积分奖励!
专家榜
数据更新时间 : 2026-03-06
天降福运!积分,经验值等福利在等着你哟,快来签到吧
还有0条追问正在审核中,请稍后回来查看