软件下载
线下培训
软件教程
智能客服
购买咨询
建筑课堂
答疑解惑
新干线头条
资料下载
技能大赛
答疑专家入驻
课程讲师入驻
行业媒体入驻
设计专区
造价专区
施工专区
联系我们
合作推广
隐私政策
贝贝 2018-03-28 15:41:45 | 广西 土建 | 1678查看 2回答
我的答案 答题人必看《优秀回答指南》
asfsdfsadfdsf
补充或更正我的问题
完善我的答案 答题人必看 《优秀回答指南》
全部回答 (2) 首答仅用{{minutesHtml}}
冯福连 白银专家
答题: 91469 被赞: 31187
2018-03-28 16:06:00
还有 1 条答案正在审核中,请稍后回来查看
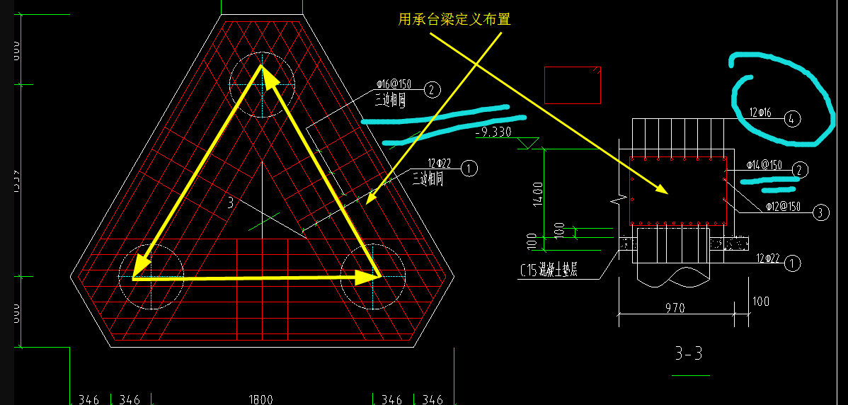
这样的桩承台钢筋怎么输入呢
桩承台钢筋计算与输入不符
承台钢筋怎么输入
如下图承台钢筋怎么输入补充问题:我这样子输入是否正确?
桩承台怎么定义钢筋
你好,选择了桩承台,知道了是环形承台应该怎么去定义钢筋呢
请问一下这个桩承台钢筋怎么输入??谢谢
如果没找到您想要的答案,试试直接提问吧!
尊敬的“{{nickname}}”,您好!
答疑解惑——建筑行业领先的互动问答平台
答疑解惑——建筑业(造价行业)领先的互动问答平台
您的问题已发布您的回答已提交
大多数问题会在7分钟内获得回答,感谢您的耐心等待
恭喜获得答题积分奖励,帮助他人,成就自己。
采纳优质答案,更可获得积分,兑换礼品哦!
高质量答案更易被采纳,获得额外高额积分奖励!
专家榜
数据更新时间 : 2026-03-05
天降福运!积分,经验值等福利在等着你哟,快来签到吧
还有0条追问正在审核中,请稍后回来查看