软件下载
线下培训
软件教程
智能客服
购买咨询
建筑课堂
答疑解惑
新干线头条
资料下载
技能大赛
答疑专家入驻
课程讲师入驻
行业媒体入驻
设计专区
造价专区
施工专区
联系我们
合作推广
隐私政策
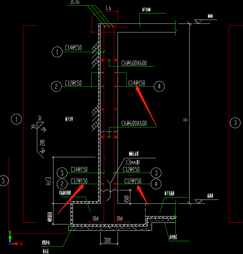
XL 2020-11-07 12:03:21 | 江西 土建 | 905查看 3回答
我的答案 答题人必看《优秀回答指南》
asfsdfsadfdsf
补充或更正我的问题
完善我的答案 答题人必看 《优秀回答指南》
全部回答 (3) 首答仅用{{minutesHtml}}
钢筋撑起半边天 钻石专家
答题: 170734 被赞: 55268
定义剪力墙,墙底的附加筋在其它钢筋里输入
2020-11-07 12:05:30
维达詹工 专家
答题: 124968 被赞: 42726
你好:
2020-11-07 12:06:41
陈工 铂金专家
答题: 211112 被赞: 51050
水平钢筋分段输入方法如下:
2020-11-07 12:09:04
这个三边分布筋怎么输入?
老师 我这个分布筋该怎么布置?我该怎么构建中输入怎么样的钢筋信息?
楼梯分布筋不同怎么输入,求图解
楼梯分布筋不同,一个是A8@150,一个是A8@200.就是图中画圈部分,应该怎么输入,求指教,谢谢
老师 水平筋是这个墙身分布筋吗?
受力筋和分布筋应该怎么输入第二张图里
2023-12-27 21:12:32 补充
如果没找到您想要的答案,试试直接提问吧!
尊敬的“{{nickname}}”,您好!
答疑解惑——建筑行业领先的互动问答平台
答疑解惑——建筑业(造价行业)领先的互动问答平台
您的问题已发布您的回答已提交
大多数问题会在7分钟内获得回答,感谢您的耐心等待
恭喜获得答题积分奖励,帮助他人,成就自己。
采纳优质答案,更可获得积分,兑换礼品哦!
高质量答案更易被采纳,获得额外高额积分奖励!
专家榜
数据更新时间 : 2026-03-05
天降福运!积分,经验值等福利在等着你哟,快来签到吧
还有0条追问正在审核中,请稍后回来查看