软件下载
线下培训
软件教程
智能客服
购买咨询
建筑课堂
答疑解惑
新干线头条
资料下载
技能大赛
答疑专家入驻
课程讲师入驻
行业媒体入驻
设计专区
造价专区
施工专区
联系我们
合作推广
隐私政策
。 2023-12-27 20:56:35 | 江西 土建 | 271查看 1回答
2023-12-27 21:12:32 补充
我的答案 答题人必看《优秀回答指南》
asfsdfsadfdsf
补充或更正我的问题
完善我的答案 答题人必看 《优秀回答指南》
全部回答 (1) 首答仅用{{minutesHtml}}
钢筋撑起半边天 钻石专家
答题: 170734 被赞: 55268
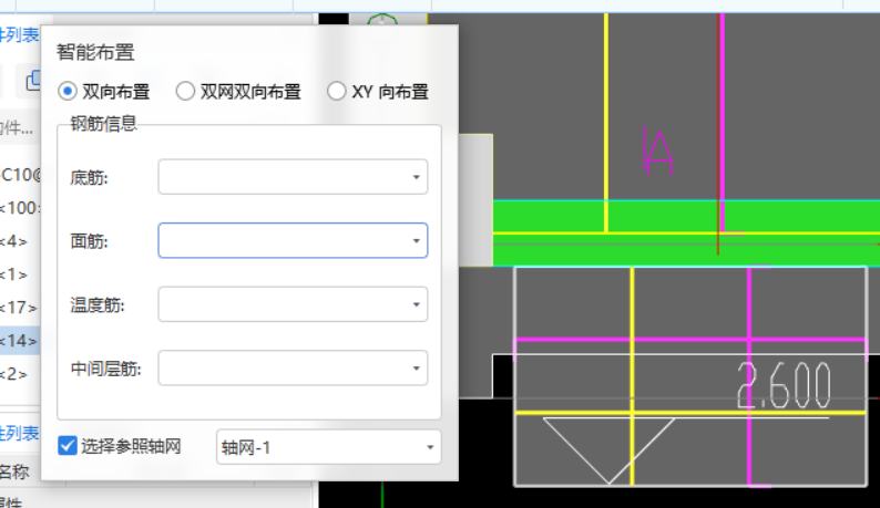
图中不可以输入,因为底筋和面筋上下都不同 选择XY向布置
如
首次提交 2023-12-27 20:58:32 最近修改2023-12-27 21:14:59 (修改过2次)
这第一张图里怎么修改这个箍筋才能变的和第二张一样啊
2021-08-05 17:13:12 补充反坎的箍筋样式怎么修改啊
关于板的负筋和分布筋
各位前辈好,晚辈咨询问题1:板负筋的布置范围,感觉稀里糊涂,我可以理解为①那么一小段,也可以理解②整根梁那么一大段?它的布置范围怎么确定问题2:有负筋必须有分布筋吗,我在计算设置当中看到了有分布筋的规格型号,但是图纸并没有说明分布筋的信息,是不是理解分布筋和马镫筋都是措施,问题3:第二张图我圈起来的那一条,“未注明的板面钢筋为c8@200”,它没有说是双向,我理解就单向,那整句话的意思就是;没注明板筋信息的,板底双向c8@200,板顶单向c8@200,是这个意思吗?我觉得没有这种做法吧,应该是双层双向c8@200吧?对吗耽误各位时间了,谢谢
如果没找到您想要的答案,试试直接提问吧!
尊敬的“{{nickname}}”,您好!
答疑解惑——建筑行业领先的互动问答平台
答疑解惑——建筑业(造价行业)领先的互动问答平台
您的问题已发布您的回答已提交
大多数问题会在7分钟内获得回答,感谢您的耐心等待
恭喜获得答题积分奖励,帮助他人,成就自己。
采纳优质答案,更可获得积分,兑换礼品哦!
高质量答案更易被采纳,获得额外高额积分奖励!
专家榜
数据更新时间 : 2026-03-06
天降福运!积分,经验值等福利在等着你哟,快来签到吧
还有0条追问正在审核中,请稍后回来查看