-
XL
2019-05-23 18:08:10
|
江西
土建安装装饰
|
701查看
3回答
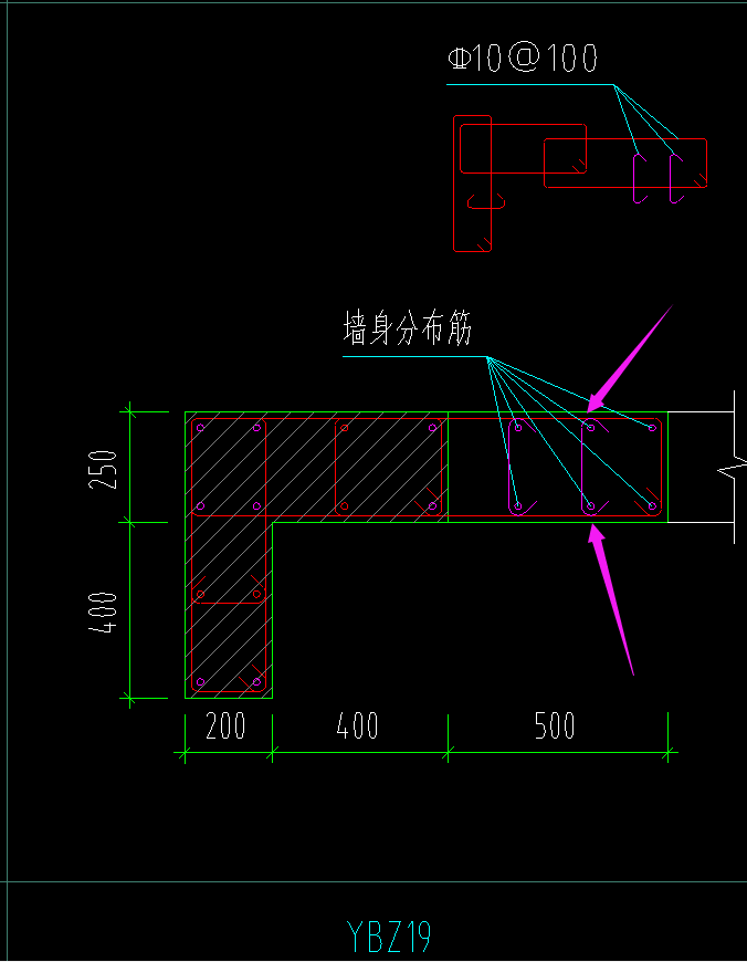
老师 我这个分布筋该怎么布置?我该怎么构建中输入怎么样的钢筋信息?



全部回答
(3)
首答仅用{{minutesHtml}}
-
已采纳
你好:+6C8的墙竖筋

首次提交 2019-05-23 18:10:19 最近修改2019-05-23 18:11:13 (修改过1次)
-
应该不要在加纵筋了,那是剪力墙的纵筋。看箍筋示意图加箍筋就行,柱也是不要画那么长到400就行。
首次提交 2019-05-23 18:16:20 最近修改2019-05-23 18:20:33 (修改过1次)
-
构造柱应该画到400位置,在其他钢筋信息里输入500范围的拉钩和箍筋就可以了,竖向钢筋属于墙身钢筋画墙的时候在定义。
2019-05-23 21:41:27






还有0条追问正在审核中,请稍后回来查看