-
匿名用户
2012-08-31 10:28:26
|
河北
土建
|
4010查看
2回答
请教关于锚杆支护及护坡
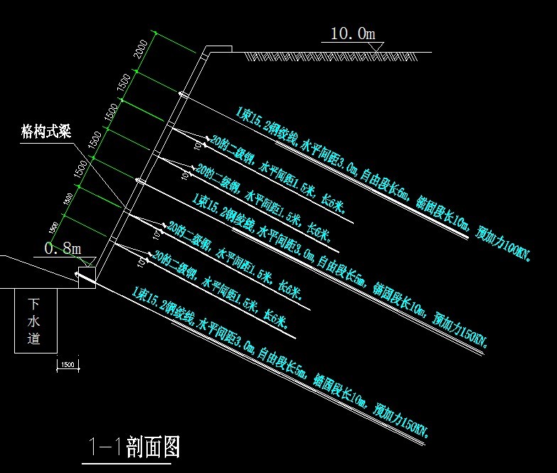
关于锚杆支护及护坡,图中有1860级直径15.2高强钢绞线和20的钢筋植入土层内护坡,请问定额中土层锚杆制作安装子目,是指的钢绞线的量还是钢绞线和20钢筋的总量呢? 还有1860级钢绞线直径15.2的长度,如何化成T,也是按钢筋的理论重量表吗?还有A2-245土层锚杆 锚头制作安装张拉锁定按套计算指什么?如何套用?
问题补充:锚索成孔150㎜,是套用a2-256灌注商品混凝土 灌注混凝土 套管成孔还是套用A2-239土层锚杆 机械钻孔(孔径mm) 150,有什么区别吗?
全部回答
(2)
首答仅用{{minutesHtml}}
-
已采纳锚索成孔应该套A2—239, 锚孔注浆套A2—241, 预应力钢绞线锚杆套A2—243换 定额内的钢筋换成钢绞线,钢筋单价换成钢绞线的单价, 锚头制作安装张拉锁定套 A2—245, A2—256是桩孔内灌混凝土,不是锚孔内注浆。 钢绞线的重量,五金手册没有这种规格的重量,国家基础定额编制说明钢绞线重量 是按1.091kg /m计算的。网上查重量都大于此数。 钢筋直径20毫米的锚杆(也称土钉),套A2—239, A2—241, A2—243 因为这种 锚杆不是预应力的不套A2—245 .
2012-08-31 16:08:42
-
1860级钢绞线直径15.2的长度,如何化成T, 要查询该钢绞线的理论重量计算为吨的。
2012-08-31 14:19:00






还有0条追问正在审核中,请稍后回来查看