-
娇子
2023-03-04 15:37:17
|
河北
土建市政
|
761查看
1回答
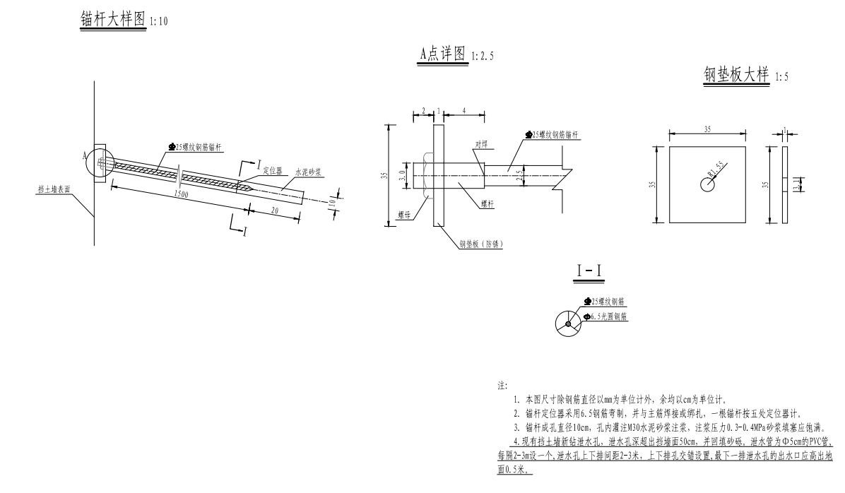
锚杆钻孔
在已通车使用的道路护坡上锚杆钻孔,穿过1.5米后混凝土结构后继续插入土中,钻孔混凝土结构应选什么子目;“锚轩定位器采用6.5钢筋管制,并与主筋焊接或绑扎, 一根锚杆按五处定位器计”需选什么子目;购买防护网及现场看门费用是否应补充子目;所选定额是否正确?




全部回答
(1)
首答仅用{{minutesHtml}}
-
钻孔混凝土结构没有对应子目,可以按土层的增加一些人工机械费考虑;“锚轩定位器采用6.5钢筋管制,并与主筋焊接或绑扎, 一根锚杆按五处定位器计”可并入锚杆子目;购买防护网及现场看门费用应补充子目;所选定额是正确的。注意2-163的工程量应该是一根一套的
2023-06-07 11:03:41






还有0条追问正在审核中,请稍后回来查看