-
爷要当奋斗青年
2025-03-19 17:16:58
|
河北
土建
|
234查看
2回答
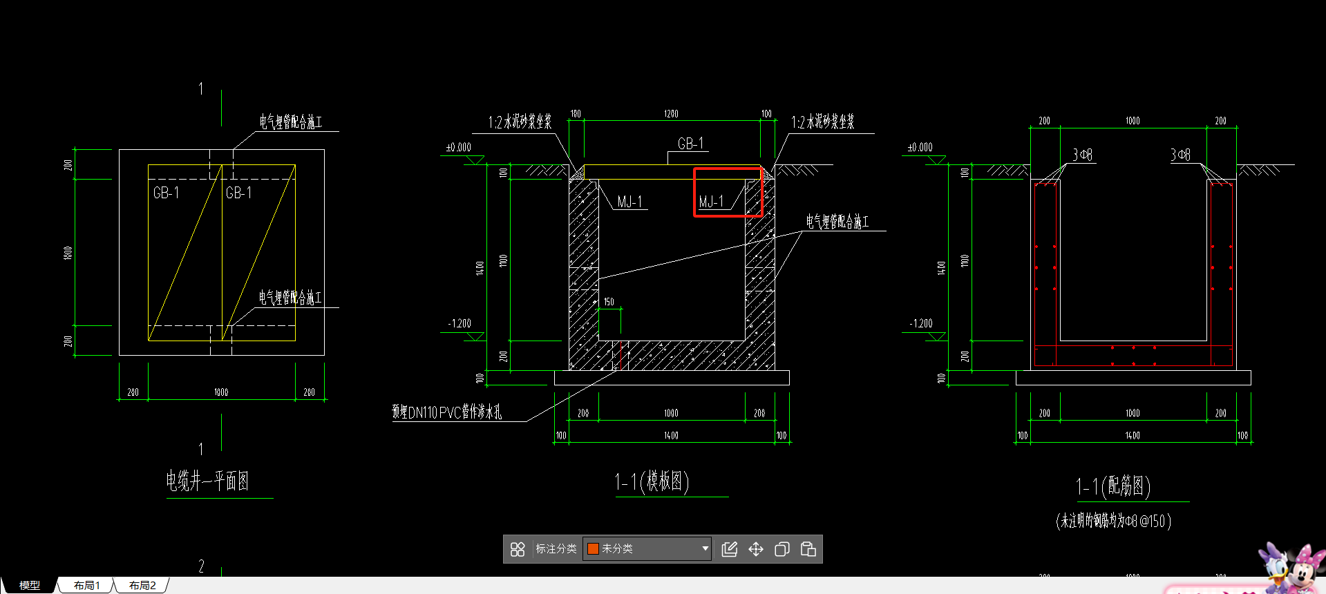
请问这个怎么算啊?
1.
2.
全部回答
(2)
首答仅用{{minutesHtml}}
-
已采纳
沟长/200+1计算根数,展开长度*0.395*个数计算重量。
2025-03-19 17:21:41
-
预埋件的脚,埋件长延井顶四周,埋件脚A8间距200
2025-03-19 17:23:12






还有0条追问正在审核中,请稍后回来查看