-
小文不吃香菜
2024-07-02 08:57:36
|
河北
土建
|
296查看
3回答
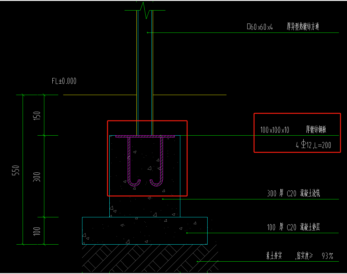
您好,请问这个怎么算啊

全部回答
(3)
首答仅用{{minutesHtml}}
-
已采纳
套预埋铁件定额
钢板重量0.1*0.1*10*7.85kg
钢筋重量0.2*0.888*4kg
2024-07-02 09:01:08
-
按预埋件算量
2024-07-02 08:58:59
-
平米*厚度(毫米)*7.85/1000=t+四根钢筋
2024-07-02 08:59:16






还有0条追问正在审核中,请稍后回来查看