软件下载
线下培训
软件教程
智能客服
购买咨询
建筑课堂
答疑解惑
新干线头条
资料下载
技能大赛
答疑专家入驻
课程讲师入驻
行业媒体入驻
设计专区
造价专区
施工专区
联系我们
合作推广
隐私政策
always. 2024-12-07 17:54:00 | 广西 土建土建计量GTJ | 299查看 1回答
我的答案 答题人必看《优秀回答指南》
asfsdfsadfdsf
补充或更正我的问题
完善我的答案 答题人必看 《优秀回答指南》
全部回答 (1) 首答仅用{{minutesHtml}}
冯福连 白银专家
答题: 91469 被赞: 31187
平面尺寸你自己输入
首次提交 2024-12-07 17:58:28 最近修改2024-12-07 18:14:13 (修改过1次)
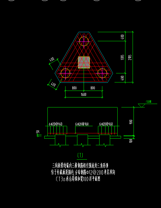
桩承台在广联达中如何定义
此桩承台在广联达中应如何定义
图中桩承台在广联达中如何定义钢筋?
广联达钢筋的桩承台如何定义?
各位老师,这桩承台在广联达钢筋里面怎么定义呀,承台尺寸与配筋如何定义? 有没有关于桩承台钢筋绘制的视频可以了解下?
老师,这桩承台在广联达钢筋里面怎么定义呀,承台尺寸与配筋如何定义? 有没有关于桩承台钢筋绘制的视频可以了解?
如果没找到您想要的答案,试试直接提问吧!
尊敬的“{{nickname}}”,您好!
答疑解惑——建筑行业领先的互动问答平台
答疑解惑——建筑业(造价行业)领先的互动问答平台
您的问题已发布您的回答已提交
大多数问题会在7分钟内获得回答,感谢您的耐心等待
恭喜获得答题积分奖励,帮助他人,成就自己。
采纳优质答案,更可获得积分,兑换礼品哦!
高质量答案更易被采纳,获得额外高额积分奖励!
专家榜
数据更新时间 : 2026-03-06
天降福运!积分,经验值等福利在等着你哟,快来签到吧
还有0条追问正在审核中,请稍后回来查看