-
always.
2024-12-07 17:05:17
|
广西
土建
|
2786查看
4回答
桩承台在广联达中如何定义


全部回答
(4)
首答仅用{{minutesHtml}}
-
已采纳
点击配筋 形式 选择梁式配筋的
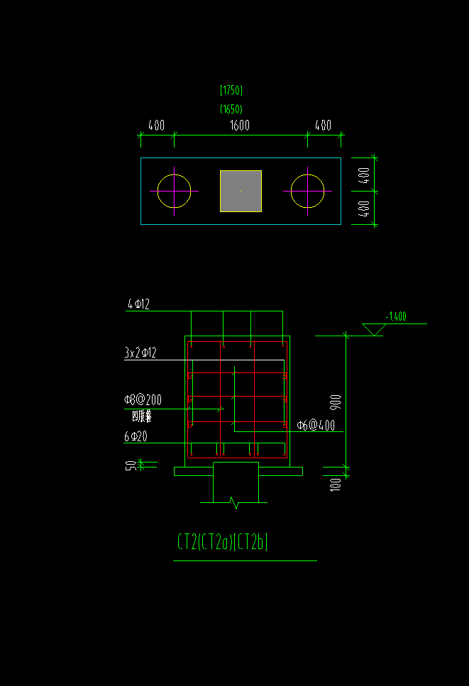
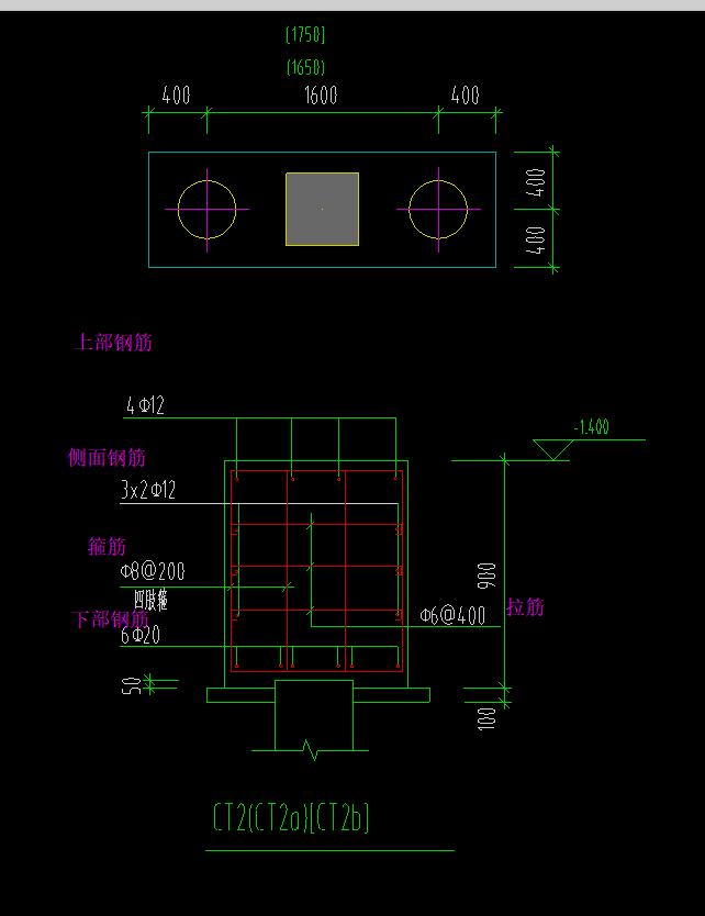
场景一:若桩承台未绘制,想要绘制矩形梁式配筋承台。
方法:切换到桩承台界面---在【构件列表】中新建桩承台---再新建桩承台单元---选择矩形桩承台---点击【配筋形式】---选择“梁式配筋承台”---输入对应的尺寸和钢筋信息,角度输入90度---点击确定---再点击确定---再绘制桩承台即可。如图:

场景二:若桩承台已绘制,想要修改为矩形梁式配筋承台。
方法:选中需修改的桩承台---点击【属性列表】---将桩承台构件名称前的加号点开---点击“截面形状”后面的属性值,左下角即可显示【参数图】---点击【参数图】---配筋形式---选择“梁式配筋承台”----修改对应的尺寸和钢筋信息,角度输入90度---点击确定即可。如图:

首次提交 2024-12-07 17:06:59 最近修改2024-12-07 17:08:37 (修改过1次)
-
点击右上角配筋形式-下拉-找到梁式配筋承台;
2024-12-07 17:07:38
-
选择梁式承台编辑


首次提交 2024-12-07 17:21:13 最近修改2024-12-07 18:18:17 (修改过1次)
还有 1 条答案正在审核中,请稍后回来查看






还有0条追问正在审核中,请稍后回来查看