-
24小时的打灰人
2023-09-27 16:39:05
|
河南
土建
|
924查看
1回答
非机动车道处建筑面积计算问题
问题:非机动道下方密闭空间是否计算水平投影的建筑面积?请老师们预计解惑!!!(非机动车出口理解,有顶盖部分计算一半,无需解答)
A:是按照在GBT50353-2013的规范3.0.27的第一项?与建筑物内不相连通的建筑部件不计算建筑面积。
B:还是按照建筑面积宣贯辅材的3.0.5这一项的解释中无论出入口坡道如何设置,无论坡道下方是否加以利用,均按3.0.5规定,按设计的自然层计算建筑面积。
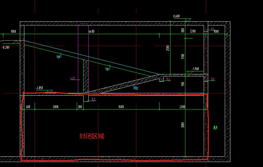
图1:图纸非机动车道,位置位于主楼剪力墙之外-2层,是四周剪力墙的封闭空间,顶部是坡道板与平台板。

图2:建筑面积计算规范3.0.27

图3:建筑面积宣贯辅材解答3.0.5

图4:建筑面积宣贯辅材解答3.0.5

全部回答
(1)
首答仅用{{minutesHtml}}
-
已采纳
按照自然层
几个楼层计算几层建筑面积
2023-09-27 16:41:59






还有0条追问正在审核中,请稍后回来查看