软件下载
线下培训
软件教程
智能客服
购买咨询
建筑课堂
答疑解惑
新干线头条
资料下载
技能大赛
答疑专家入驻
课程讲师入驻
行业媒体入驻
设计专区
造价专区
施工专区
联系我们
合作推广
隐私政策
啊哈 2019-04-05 18:18:16 | 河南 土建计价软件GBQ4.0钢筋算量GGJ2013 | 1968查看 1回答
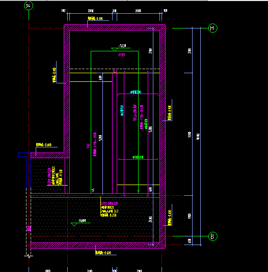
坡道建筑面积是否同楼梯建筑面积计算规则?
如下图中非机动车坡道TL、PTB混凝土是否计入?
地面抹灰和天棚抹灰是计算投影面积,还是实际面积?
我的答案 答题人必看《优秀回答指南》
asfsdfsadfdsf
补充或更正我的问题
完善我的答案 答题人必看 《优秀回答指南》
全部回答 (1) 首答仅用{{minutesHtml}}
欢乐心中飞雪 钻石专家
答题: 143372 被赞: 46454
2019-04-05 18:22:38
非机动车道出入口建筑面积计算
上图为非机动车坡道剖面图,在计算建筑面积时,我的理解是按照外墙外围结构水平面积的1/2计算建筑面积,但我同时有个疑问,坡道下方(即负一层和负二层)是否需要再次计算建筑面积?该部分应如何正确的计算建筑面积,向各位前辈请教,希望给出解答,谢谢
如果没找到您想要的答案,试试直接提问吧!
尊敬的“{{nickname}}”,您好!
答疑解惑——建筑行业领先的互动问答平台
答疑解惑——建筑业(造价行业)领先的互动问答平台
您的问题已发布您的回答已提交
大多数问题会在7分钟内获得回答,感谢您的耐心等待
恭喜获得答题积分奖励,帮助他人,成就自己。
采纳优质答案,更可获得积分,兑换礼品哦!
高质量答案更易被采纳,获得额外高额积分奖励!
专家榜
数据更新时间 : 2026-03-06
天降福运!积分,经验值等福利在等着你哟,快来签到吧
还有0条追问正在审核中,请稍后回来查看