-
1
2023-06-17 10:10:17
|
河北
安装
|
7647查看
19回答
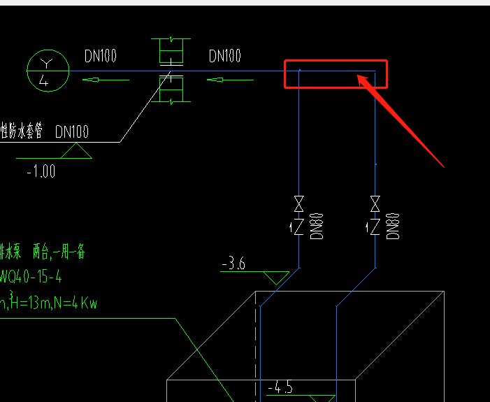
此部分管道是DN80还是DN100?

全部回答
(19)
首答仅用{{minutesHtml}}
-
已采纳
DN80的,过三通汇流后才变成DN100的呢。

首次提交 2023-06-17 10:12:52 最近修改2023-06-17 10:14:07 (修改过1次)
-
应该是80,从三通位置变径
首次提交 2023-06-17 10:10:57 最近修改2023-06-17 10:15:30 (修改过1次)
-
DN100
2023-06-17 10:11:38
-
DN80
首次提交 2023-06-17 10:11:40 最近修改2023-06-17 10:12:31 (修改过1次)
-
框柱部分是DN80的,同右侧立管为一台泵输送介质
2023-06-17 10:12:02
-
横向100,竖向80
2023-06-17 10:12:42
-
是DN80
2023-06-17 10:15:37
-
还按DN80管道计算,从红色方框中左侧的三通位置进行变径。
2023-08-13 09:15:47
-

2023-09-28 09:38:22
-
兄弟们,这个是轴测图!
需要准确判断的话,还需要结合平面图。
按经验,这段大概率的80的。2023-11-08 15:49:20
-
如果管径有变化 会标注的 弯头到三通之间应为DN80
2023-12-31 14:24:53
-
DN80
2024-03-09 14:10:26
-
DN80,三通位置变径
2025-02-26 13:56:59
-
DN100
2025-03-19 08:30:51
-
正常考虑的话是DN80.
2025-05-13 17:54:01
-
DN80比较合理,如果施工不能确定,可让设计院进行明确。如果结算存在争议的话,以现场施工为准。
2025-06-17 09:05:42
-
DN80
2025-07-11 18:09:58
-
必须 DN80
2025-09-20 08:42:08
-
这种问题需要回答吗?没有提示变径或者标注变径的地方,怎么会变径?再者这个需要变径吗?施工与看图要结合,预算不能纸上谈兵。施工员绝对一眼看出是DN80而且不用解释。
2026-01-06 08:52:17






还有0条追问正在审核中,请稍后回来查看