-
绿茶火山
2024-06-16 19:34:29
|
河北
安装
|
400查看
2回答
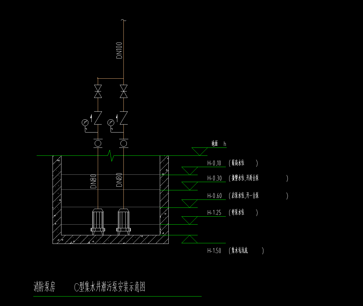
这个排污泵内的管道该如何计算啊

这个预埋镀锌压力排水管道DN80是坑底高度*2,这个100的管道是从进户的高度到地面高度嘛,还是DN80算到100管道的入户高度,100管道就算一个水平长度。
全部回答
(2)
首答仅用{{minutesHtml}}
-
已采纳
预埋镀锌压力排水管道DN80是坑底高度*2,
2024-06-16 19:55:49
-
是DN80
2024-06-16 22:45:00






还有0条追问正在审核中,请稍后回来查看