-
森林的颜色
2023-03-20 11:27:49
|
山东
土建
|
3186查看
1回答
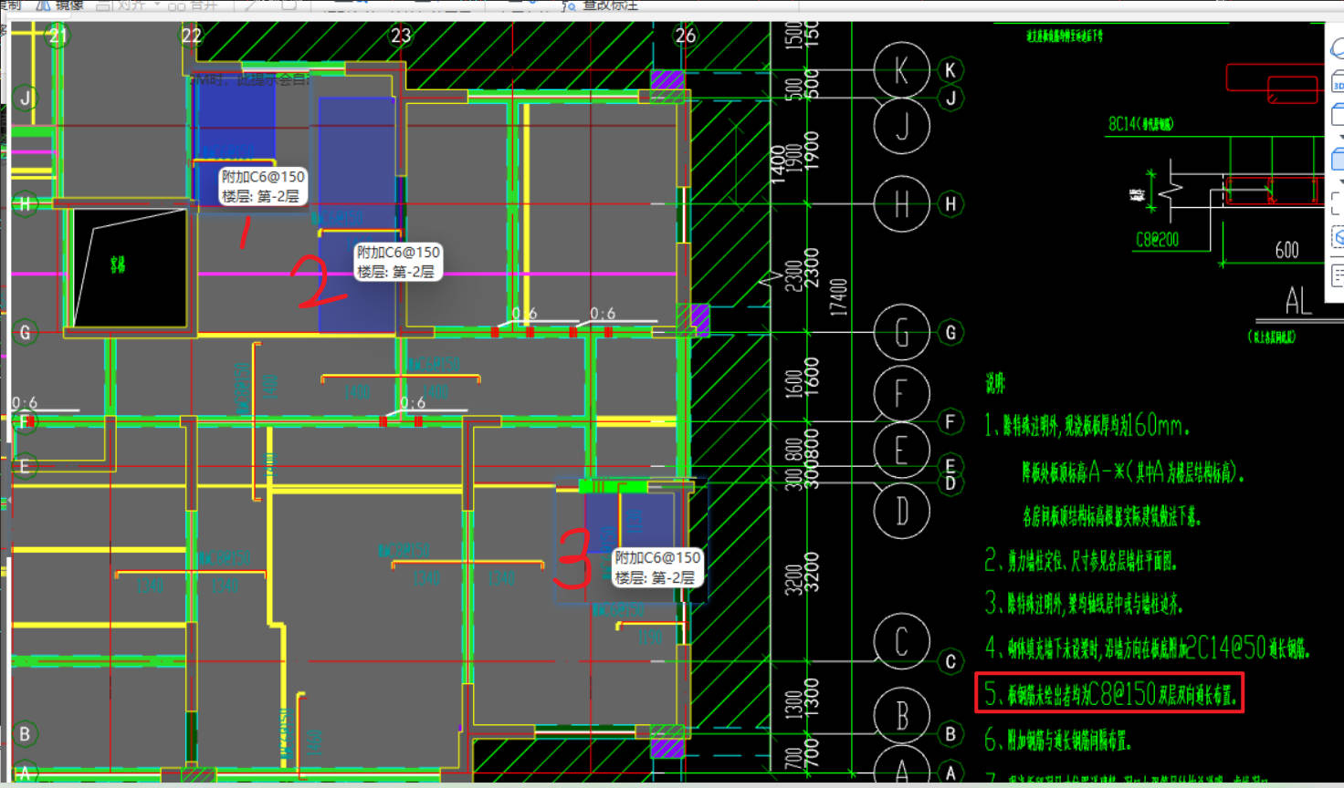
如图所示,-2层的板的附加钢筋布筋范围1 2 3处是否正确?为什么?

全部回答
(1)
首答仅用{{minutesHtml}}
还有 1 条答案正在审核中,请稍后回来查看



