-
向左走@向右走
2023-04-17 10:20:12
|
山东
土建
|
517查看
1回答
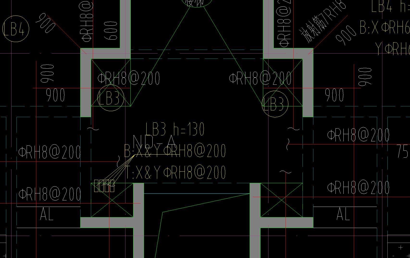
板钢筋



如图板的布筋是否正确?1、先在如图2范围布置双层双向钢筋L8@200
2、按照如图3布置跨板受力筋
如果按照以上方法布置钢筋,就会出现此块板部分出现面筋双层布置(面筋和跨板受力筋)这样是否正确正确?
全部回答
(1)
首答仅用{{minutesHtml}}
-
应该是面筋挑出去就对了(用跨板受力筋处理) 不要布置跨板受力筋后再布置面筋了
首次提交 2023-04-17 10:22:33 最近修改2023-04-17 10:23:48 (修改过1次)






还有0条追问正在审核中,请稍后回来查看