软件下载
线下培训
软件教程
智能客服
购买咨询
建筑课堂
答疑解惑
新干线头条
资料下载
技能大赛
答疑专家入驻
课程讲师入驻
行业媒体入驻
设计专区
造价专区
施工专区
联系我们
合作推广
隐私政策
123 2022-08-18 15:41:06 | 河北 土建 | 537查看 3回答
我的答案 答题人必看《优秀回答指南》
asfsdfsadfdsf
补充或更正我的问题
完善我的答案 答题人必看 《优秀回答指南》
全部回答 (3) 首答仅用{{minutesHtml}}
打不死的佩奇 专家
答题: 2749 被赞: 710
一个垂直方向,一个水平方向,范围不冲突
2022-08-18 15:42:47
宋娟 专家
答题: 3005 被赞: 3611
按照图纸示意范围正常布置,不冲突的
2022-08-18 15:44:39
qxname
答题: 40 被赞: 51
这样没有错,按图纸布置就行,实际软件中钢筋应该是下图布置;只是重叠部分不会重复布置负筋分布筋;
2022-08-18 15:47:37
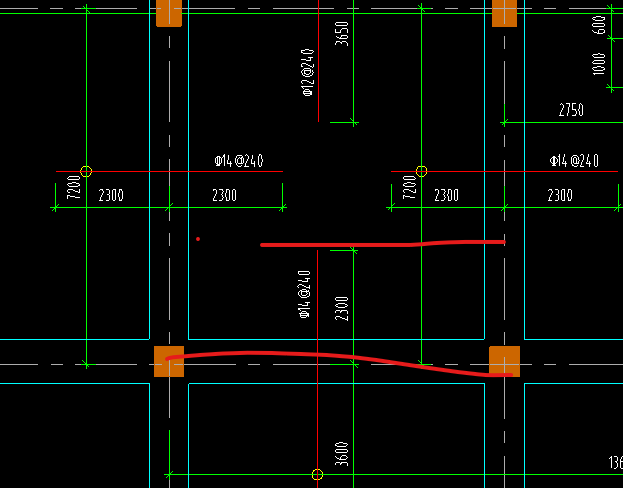
请问这个筋是筏板负筋吗?怎么布置?长度是多少?
请问这个筏板负筋的范围怎么看?绿色的圈代表什么?
2019-10-15 10:18:17 补充能详细说一下负筋C16和C14的布筋范围吗?两个绿圈中间的范围是哪个筋的
请问这个面筋在哪里画,是板负筋吗?但是只给了右面的距离,没给左边的距离怎么办
如果没找到您想要的答案,试试直接提问吧!
尊敬的“{{nickname}}”,您好!
答疑解惑——建筑行业领先的互动问答平台
答疑解惑——建筑业(造价行业)领先的互动问答平台
您的问题已发布您的回答已提交
大多数问题会在7分钟内获得回答,感谢您的耐心等待
恭喜获得答题积分奖励,帮助他人,成就自己。
采纳优质答案,更可获得积分,兑换礼品哦!
高质量答案更易被采纳,获得额外高额积分奖励!
专家榜
数据更新时间 : 2026-03-05
天降福运!积分,经验值等福利在等着你哟,快来签到吧
还有0条追问正在审核中,请稍后回来查看