-
陈情
2019-10-15 10:05:58
|
河北
土建招投标土建计量GTJ
|
1317查看
3回答
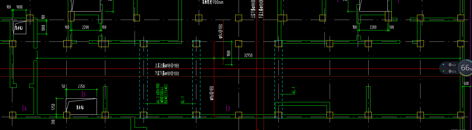
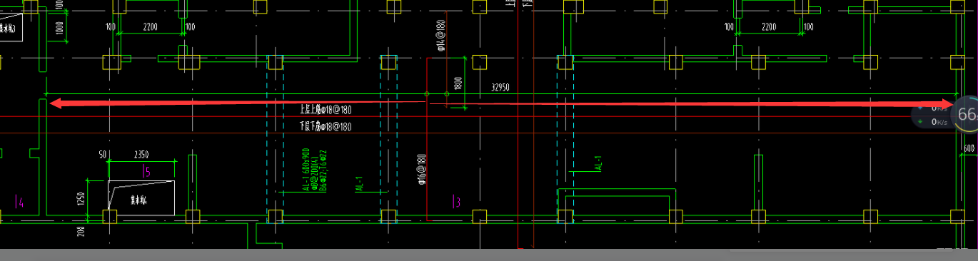
请问这个筏板负筋的范围怎么看?绿色的圈代表什么?

2019-10-15 10:18:17 补充
能详细说一下负筋C16和C14的布筋范围吗?两个绿圈中间的范围是哪个筋的
全部回答
(3)
首答仅用{{minutesHtml}}
-
绿色的圈是剪力墙示意
2019-10-15 10:08:11
-
绿色圈所在的绿色线是钢筋的布置范围,绿色圈所在的红色线是钢筋的长度
2019-10-15 10:08:20
-
你好:绿色的圈和线代表钢筋布置范围

首次提交 2019-10-15 10:08:37 最近修改2019-10-15 10:09:35 (修改过1次)






还有0条追问正在审核中,请稍后回来查看