软件下载
线下培训
软件教程
智能客服
购买咨询
建筑课堂
答疑解惑
新干线头条
资料下载
技能大赛
答疑专家入驻
课程讲师入驻
行业媒体入驻
设计专区
造价专区
施工专区
联系我们
合作推广
隐私政策
水中的螃蟹 2020-06-03 14:24:33 | 河北 土建钢筋算量GGJ2013 | 477查看 1回答
这个抗扭钢筋怎么输
我的答案 答题人必看《优秀回答指南》
asfsdfsadfdsf
补充或更正我的问题
完善我的答案 答题人必看 《优秀回答指南》
全部回答 (1) 首答仅用{{minutesHtml}}
狂人日记
答题: 56 被赞: 13
采用梁绘画,抗扭钢筋信息在侧面钢筋信息栏填入对应的信息即可
2020-06-03 16:03:18
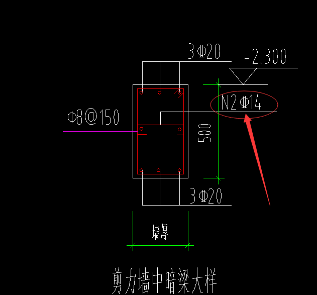
这个暗梁怎么定义
补充问题:是墙上的暗梁
这个暗梁如何定义,参数如何输入
房间的角部的楼板内暗梁钢筋如何输入,如何定义暗梁形状。
老师您好 这个暗梁怎么定义 谢谢
请问,这个梁该怎么定义?暗梁吗?还是基础梁
车库顶板暗梁怎么定义?
这个暗梁的筋应该怎么定义?同一方向暗梁上的柱墩高度不一样,暗梁的高度应该怎么样定义?箍筋定义不了c8-100/300怎么解决?各位老师求解惑!
如果没找到您想要的答案,试试直接提问吧!
尊敬的“{{nickname}}”,您好!
答疑解惑——建筑行业领先的互动问答平台
答疑解惑——建筑业(造价行业)领先的互动问答平台
您的问题已发布您的回答已提交
大多数问题会在7分钟内获得回答,感谢您的耐心等待
恭喜获得答题积分奖励,帮助他人,成就自己。
采纳优质答案,更可获得积分,兑换礼品哦!
高质量答案更易被采纳,获得额外高额积分奖励!
专家榜
数据更新时间 : 2026-03-06
天降福运!积分,经验值等福利在等着你哟,快来签到吧
还有0条追问正在审核中,请稍后回来查看