-
小新人
2017-07-28 10:59:10
|
河北
土建
|
923查看
2回答
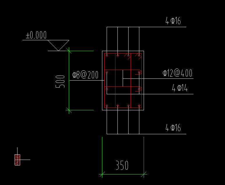
这个暗梁怎么定义

补充问题:是墙上的暗梁
全部回答
(2)
首答仅用{{minutesHtml}}
-
已采纳这样定义:

2017-07-28 11:04:46
-
可以新建异形梁,然后手动把钢筋画上去。
2017-07-28 11:01:35
-
答:如果不是墙上的暗梁,可按基础梁定义和布置。
2017-07-28 11:03:08






还有0条追问正在审核中,请稍后回来查看