软件下载
线下培训
软件教程
智能客服
购买咨询
建筑课堂
答疑解惑
新干线头条
资料下载
技能大赛
答疑专家入驻
课程讲师入驻
行业媒体入驻
设计专区
造价专区
施工专区
联系我们
合作推广
隐私政策
skjnjre 2019-11-05 19:30:40 | 广东 土建 | 676查看 2回答
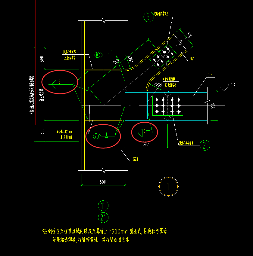
想请问一下这几个符号是什么意思,这个大样图又怎么理解呢?
我的答案 答题人必看《优秀回答指南》
asfsdfsadfdsf
补充或更正我的问题
完善我的答案 答题人必看 《优秀回答指南》
全部回答 (2) 首答仅用{{minutesHtml}}
风林火山
答题: 410 被赞: 100
焊接符号,不影响工程量计算。这个大样图就是柱与梁连接节点详图,可以知道梁的长度,螺栓类别之类的。
2019-11-05 19:57:15
林旋耀 白银专家
答题: 34032 被赞: 10718
在钢结构设计说明一般会有说明的,一般是指焊接点角度/大小的节点。
2019-11-05 20:36:10
关于钢结构的节点问题
上图1和图2中箭头所指的那些数字是代表什么意思?
关于钢结构系杆节点处理
目前软件处理系杆连接处节点只有这一种吗,如果是我图中的这种连接方式改如何处理
关于钢结构柱子与梁节点
老师,这个柱与梁的节点的阴影部分是个什么东西啊?它是钢梁本身的,只是到了这里变厚了。还是说这里是个单独的连接板。我要单独算他的工程量。我没见过现场 ,所以想不通。
钢结构节点
请教一下,这个钢结构节点是怎么算,图中的数值代表什么?
钢结构节点大样
这两个是同一个吗
如果没找到您想要的答案,试试直接提问吧!
尊敬的“{{nickname}}”,您好!
答疑解惑——建筑行业领先的互动问答平台
答疑解惑——建筑业(造价行业)领先的互动问答平台
您的问题已发布您的回答已提交
大多数问题会在7分钟内获得回答,感谢您的耐心等待
恭喜获得答题积分奖励,帮助他人,成就自己。
采纳优质答案,更可获得积分,兑换礼品哦!
高质量答案更易被采纳,获得额外高额积分奖励!
专家榜
数据更新时间 : 2026-03-06
天降福运!积分,经验值等福利在等着你哟,快来签到吧
还有0条追问正在审核中,请稍后回来查看