软件下载
线下培训
软件教程
智能客服
购买咨询
建筑课堂
答疑解惑
新干线头条
资料下载
技能大赛
答疑专家入驻
课程讲师入驻
行业媒体入驻
设计专区
造价专区
施工专区
联系我们
合作推广
隐私政策
zc 2019-07-29 16:59:02 | 广东 土建 | 1577查看 1回答
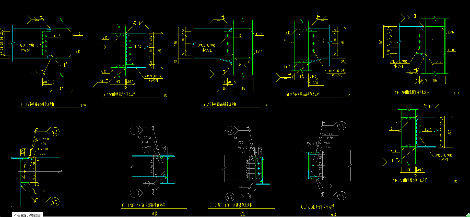
请教一下,这个钢结构节点是怎么算,图中的数值代表什么?
我的答案 答题人必看《优秀回答指南》
asfsdfsadfdsf
补充或更正我的问题
完善我的答案 答题人必看 《优秀回答指南》
全部回答 (1) 首答仅用{{minutesHtml}}
风林火山
答题: 410 被赞: 100
这个是钢梁与钢柱、钢梁的连接节点,t表示钢板厚度,3M20表示螺栓的数量和规格。节点钢板计算面积乘以单位面积质量,螺栓按数量进行统计。
首次提交 2019-07-29 17:17:00 最近修改2019-07-29 17:25:37 (修改过2次)
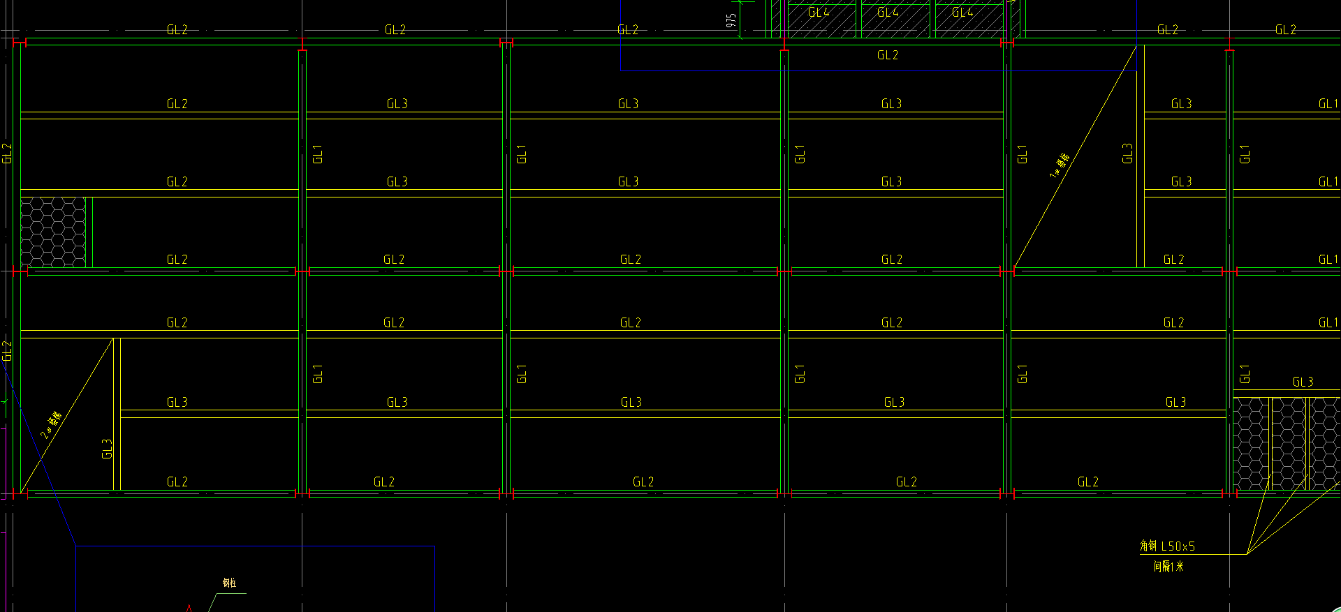
钢结构节点大样
这两个是同一个吗
关于钢结构节点
想请问一下这几个符号是什么意思,这个大样图又怎么理解呢?
广东钢结构节点计算
如图,请问这种钢梁和钢柱的连接节点要计算质量吗
钢结构中泛水节点
老师,1、钢结构窗上下的泛水板 需要计算工程量清单吗?2、要算的话,怎么套定额呢?
钢结构节点板计算
钢结构节点板是否如图中红色方框所示,应该如何计算?谢谢
如果没找到您想要的答案,试试直接提问吧!
尊敬的“{{nickname}}”,您好!
答疑解惑——建筑行业领先的互动问答平台
答疑解惑——建筑业(造价行业)领先的互动问答平台
您的问题已发布您的回答已提交
大多数问题会在7分钟内获得回答,感谢您的耐心等待
恭喜获得答题积分奖励,帮助他人,成就自己。
采纳优质答案,更可获得积分,兑换礼品哦!
高质量答案更易被采纳,获得额外高额积分奖励!
专家榜
数据更新时间 : 2026-03-06
天降福运!积分,经验值等福利在等着你哟,快来签到吧
还有0条追问正在审核中,请稍后回来查看