-
☽
2019-04-22 14:25:22
|
广西
土建土建计量GTJ
|
481查看
1回答
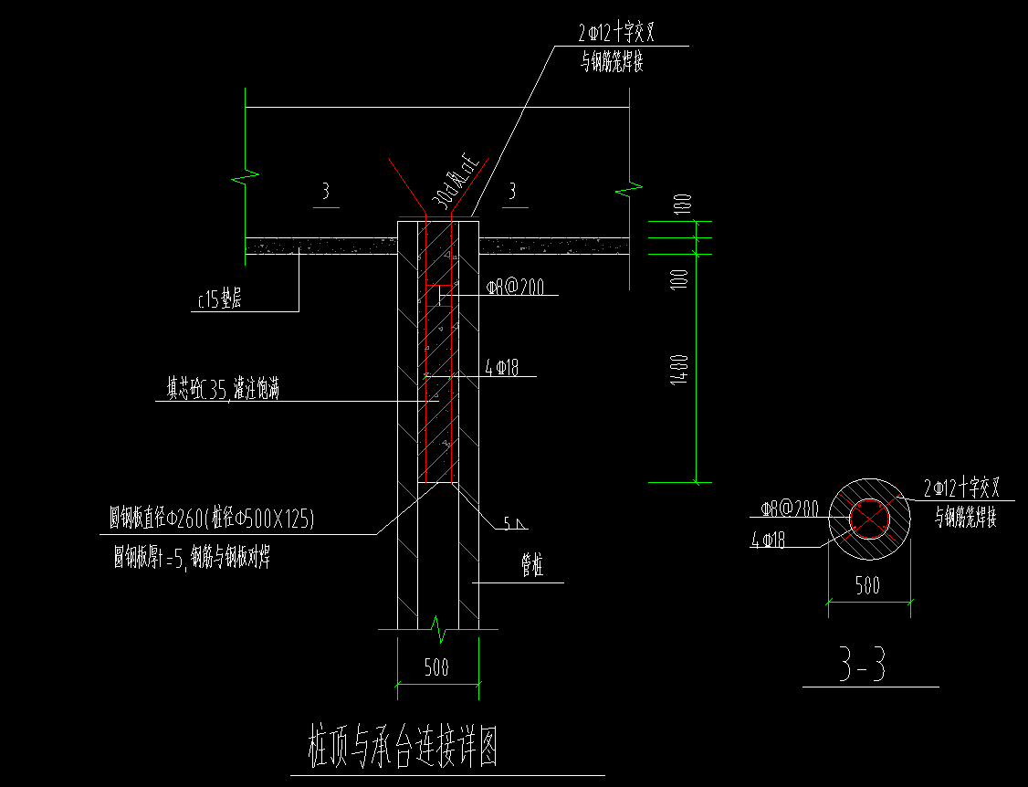
桩顶与承台连接的钢筋在软件哪设置?

全部回答
(1)
首答仅用{{minutesHtml}}
-
不能设置,画桩(在其他钢筋里面输入钢筋信息)
2019-04-22 14:47:43






还有0条追问正在审核中,请稍后回来查看