-
c7
2025-08-07 09:47:40
|
广西
土建
|
235查看
1回答
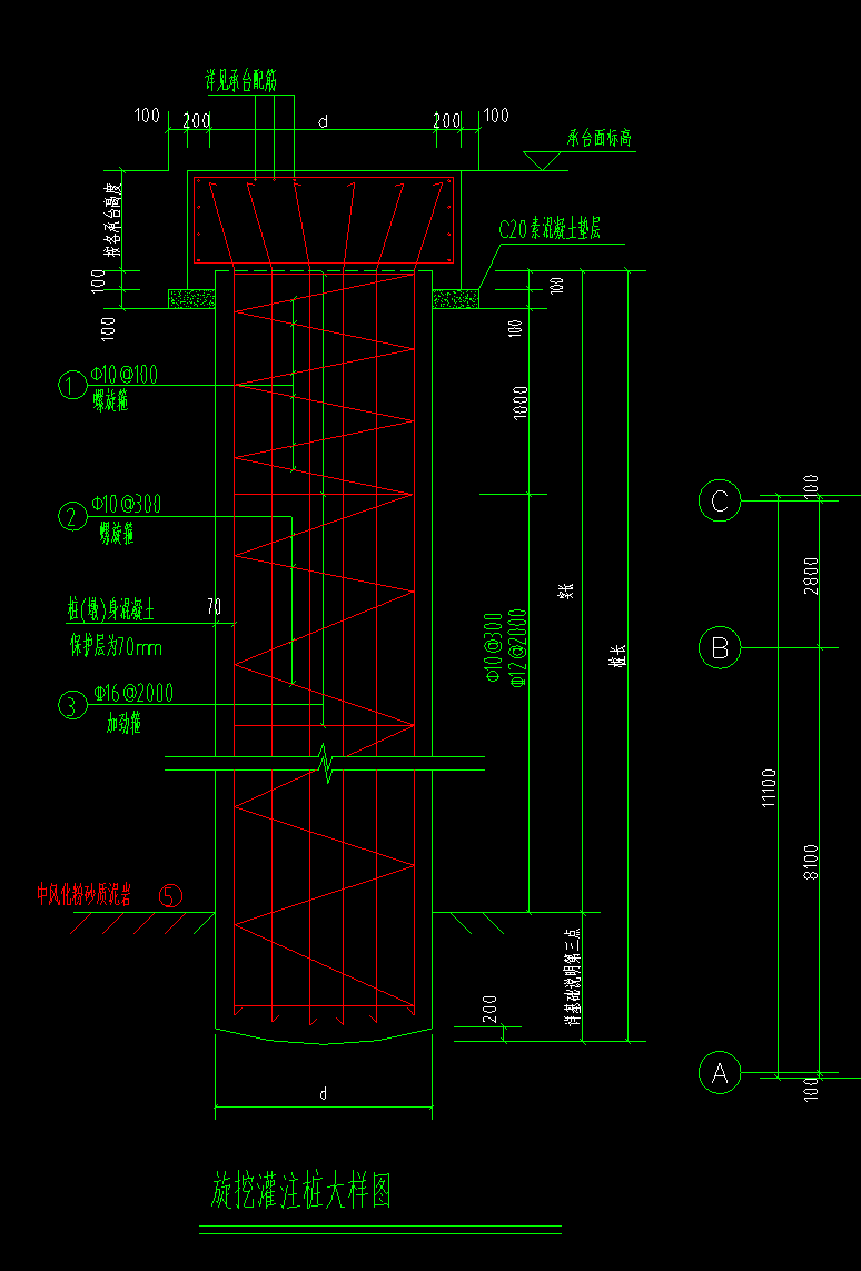
各位师傅们,桩基础怎么处理?
各位老师好,想问一下,一般来说桩基础怎么处理比较好?图纸给的是旋挖灌注桩1、在广联达建模软件中要绘制桩吗?2、我看有人说单构件处理比较好,这个怎么操作呢?3、如果桩不绘制的话,是绘制到桩承台就可以了吗?4、图中没有给桩长,应该怎么计算呢?5、楼层设置中基础的底标高和顶标高应该怎么确定?谢谢各位老师

全部回答
(1)
首答仅用{{minutesHtml}}
-
桩的钢筋在表格算量里计算,桩的混凝土可以手算,具体长度看图纸说明
2025-08-07 09:58:55






还有0条追问正在审核中,请稍后回来查看