-
祝云龙z
2026-03-05 19:19:31
|
山东
土建结算
|
19查看
1回答
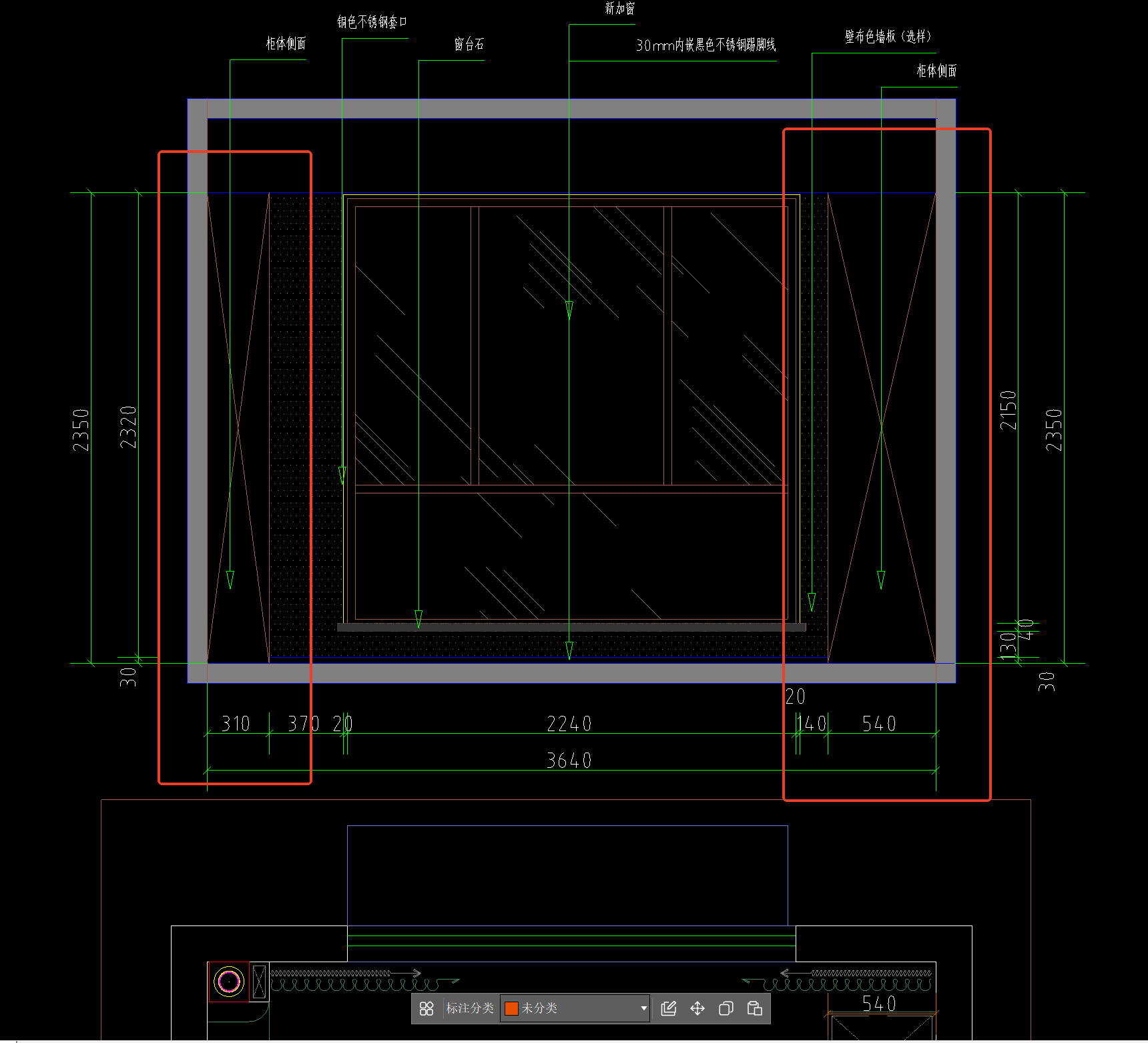
请问柜体侧面与相交墙体的这部分做墙板了吗?

柜体侧面图纸中的两个斜线是代表柜体还是代表这部分墙体不施工墙板?
全部回答
(1)
首答仅用{{minutesHtml}}
-
需要做柜板,墙板后施工可不考虑
首次提交 2026-03-05 19:25:13 最近修改2026-03-05 19:25:51 (修改过1次)






还有0条追问正在审核中,请稍后回来查看