软件下载
线下培训
软件教程
智能客服
购买咨询
建筑课堂
答疑解惑
新干线头条
资料下载
技能大赛
答疑专家入驻
课程讲师入驻
行业媒体入驻
设计专区
造价专区
施工专区
联系我们
合作推广
隐私政策
啦啦啦啦啦 2026-02-25 10:23:02 | 江西 土建预算 | 49查看 4回答
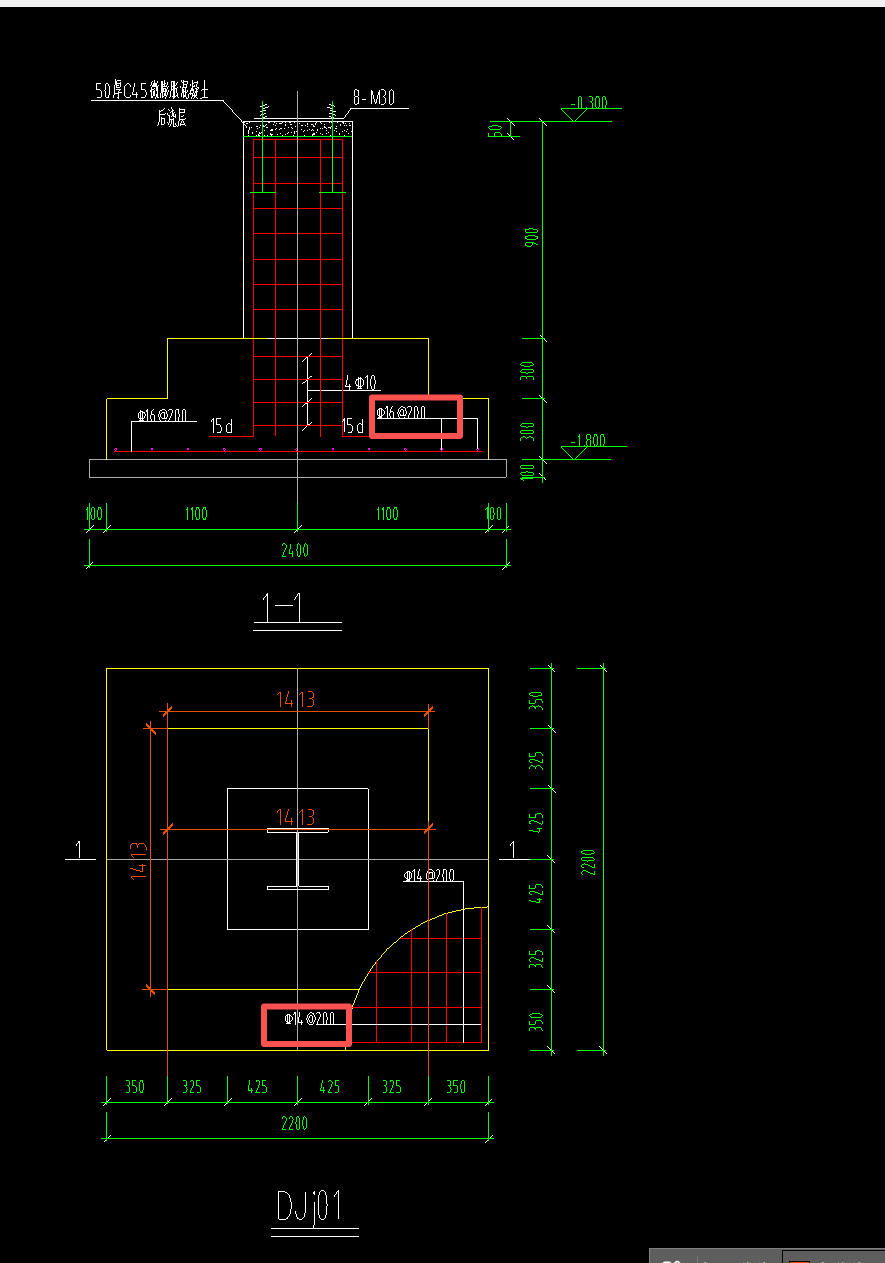
C14-200和C16-200是不是相矛盾
我的答案 答题人必看《优秀回答指南》
asfsdfsadfdsf
补充或更正我的问题
完善我的答案 答题人必看 《优秀回答指南》
全部回答 (4) 首答仅用{{minutesHtml}}
大家广联 钻石专家
答题: 229362 被赞: 142582
是的,得咨询设计
2026-02-25 10:24:29
星霜荏苒 钻石专家
答题: 37399 被赞: 28652
矛盾,找设计确认
2026-02-25 10:29:01
nh 钻石专家
答题: 159456 被赞: 33944
先按16设置,后再咨询设计
2026-02-25 10:50:51
凌雪 白银专家
答题: 1328 被赞: 293
对
2026-02-25 14:21:41
基础梁配筋计算问题
如图,柱宽550,请问锚固中1400和净长4700怎么算出来的
设备基础的布筋
各位大佬们,可以用筏板基础布置设备基础然后这样布置钢筋嘛,主要是u形构造钢筋和筏板侧面纵筋是不是这样的我不确定。还是用钢筋业务属性统计钢筋呀
请问这个配筋如何布置的问题
补充问题:能否再钢筋算量中帮我画出来 让我参考下 拜谢了
如图这个设备基础的纵筋下料是怎么下的呢?
如图是一还是二呢?大样图很难看出来
关于刚刚独立基础马凳筋的问题
请问这个马凳筋是什么样子,多长呀。
如果没找到您想要的答案,试试直接提问吧!
尊敬的“{{nickname}}”,您好!
答疑解惑——建筑行业领先的互动问答平台
答疑解惑——建筑业(造价行业)领先的互动问答平台
您的问题已发布您的回答已提交
大多数问题会在7分钟内获得回答,感谢您的耐心等待
恭喜获得答题积分奖励,帮助他人,成就自己。
采纳优质答案,更可获得积分,兑换礼品哦!
高质量答案更易被采纳,获得额外高额积分奖励!
专家榜
数据更新时间 : 2026-03-06
天降福运!积分,经验值等福利在等着你哟,快来签到吧
还有0条追问正在审核中,请稍后回来查看