-
加
2026-01-14 16:19:14
|
河北
土建
|
92查看
5回答
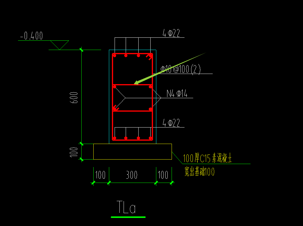
这是梁,,请问这个是什么钢筋?该怎么在软件里输入呢?

全部回答
(5)
首答仅用{{minutesHtml}}
-
输入侧面钢筋会自动生成拉筋,你这个图纸示意是箍筋,可以在其他箍筋里输入首次提交 2026-01-14 16:21:14 最近修改2026-01-14 16:22:14 (修改过1次)
-
有侧面钢筋,就输入拉勾2026-01-14 16:21:46
-
横向箍筋,在其他钢筋输入
2026-01-14 16:22:26
-
这个位置一般是拉筋的,但是,这个图是箍筋的。所以要在其它箍筋中输入的。
2026-01-14 16:29:25
-
你这个应该是侧面钢筋上的箍筋
一般侧面钢筋设置的是拉筋,你这个梁侧面钢筋设置的是箍筋,
如果没有地方输入时可以在梁属性里的其他钢筋里去输入
2026-01-14 16:29:40






还有0条追问正在审核中,请稍后回来查看