-
求学人
2025-12-04 08:55:06
|
广东
安装
|
120查看
7回答
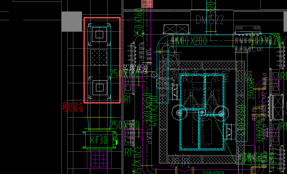
请问,在暖通中这个图例代表什么?

全部回答
(7)
首答仅用{{minutesHtml}}
-
已采纳
散流器,出风口,一般是600*600的
套风口定额
2025-12-04 08:56:54
-
风口
2025-12-04 08:57:12
-
风管下部风口
2025-12-04 08:59:02
-

2025-12-04 08:59:39
-
风机盘管的送风口(散流器)
2025-12-04 09:07:18
-
送风口
2025-12-04 09:32:56
-
散流器
2025-12-04 10:51:31






还有0条追问正在审核中,请稍后回来查看