-
啦啦啦啦啦
2025-10-11 14:42:19
|
江西
土建预算
|
156查看
3回答
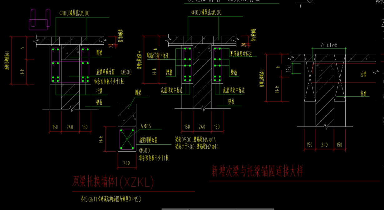
该梁集中标注怎么理解

2025-10-11 14:57:51 补充

全部回答
(3)
首答仅用{{minutesHtml}}
-
找下剖面图
2025-10-11 14:48:43
-
疑似:
两根150*450的梁
上部4c16,下部4c20
问问设计吧,非标准标注,XZKL是个什么梁?
首次提交 2025-10-11 14:48:50 最近修改2025-10-11 14:49:27 (修改过1次)
-
如果是加固改造工程 那就是在原结构梁两侧加2条150*450的梁,梁的钢筋信息8C16在梁的两侧均匀布置(一边4根),另外一条梁8C20在梁的两侧均匀布置(一边4根).
2025-10-11 15:08:30






还有0条追问正在审核中,请稍后回来查看