-
糖糖
2025-07-25 15:58:23
|
辽宁
土建市政
|
132查看
1回答
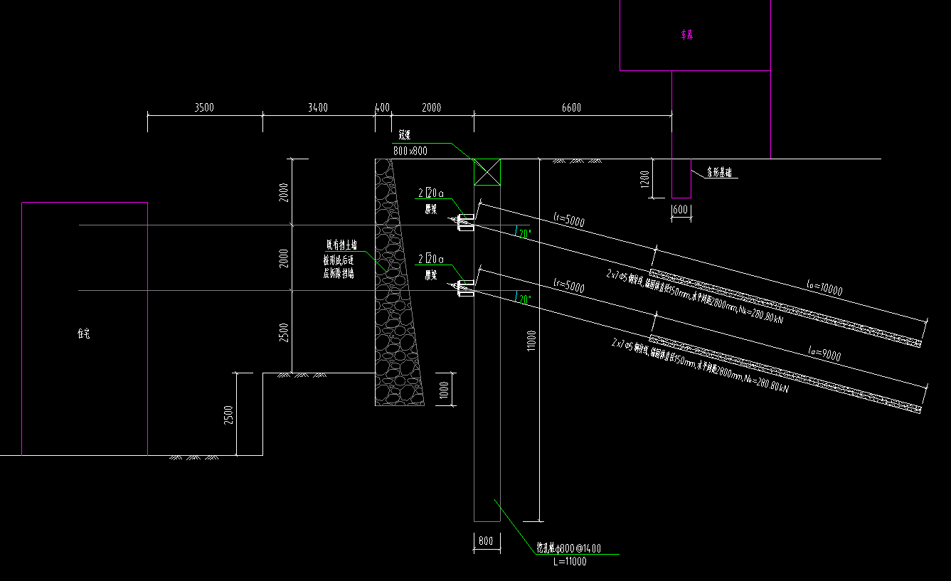
请问各位大神这种挡土墙的桩都怎么算,措施费都怎么记取

2025-07-25 16:19:27 补充
求各位大神指导
全部回答
(1)
首答仅用{{minutesHtml}}
-
挖孔桩,套挖孔、钢筋笼、浇筑混凝土等,上面还有冠梁,侧面有锚杆
2025-07-26 08:59:37






还有0条追问正在审核中,请稍后回来查看