-
小晴天
2025-07-04 11:18:15
|
河北
土建预算土建计量GTJ
|
216查看
4回答
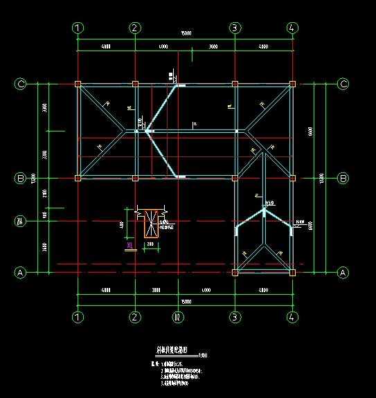
请问这种斜屋面的斜梁里的这个三条白线是拉筋吗?怎么布置上这个钢筋呢?


全部回答
(4)
首答仅用{{minutesHtml}}
-
标注线
2025-07-04 11:19:09
-
标注线---6个原点钢筋规格
2025-07-04 11:21:23
-
是标注引出线,A8@150按梁箍筋定义即可。
2025-07-04 11:21:54
-

2025-07-04 12:58:34






还有0条追问正在审核中,请稍后回来查看