-
_
2025-06-16 16:50:15
|
广东
土建
|
451查看
5回答
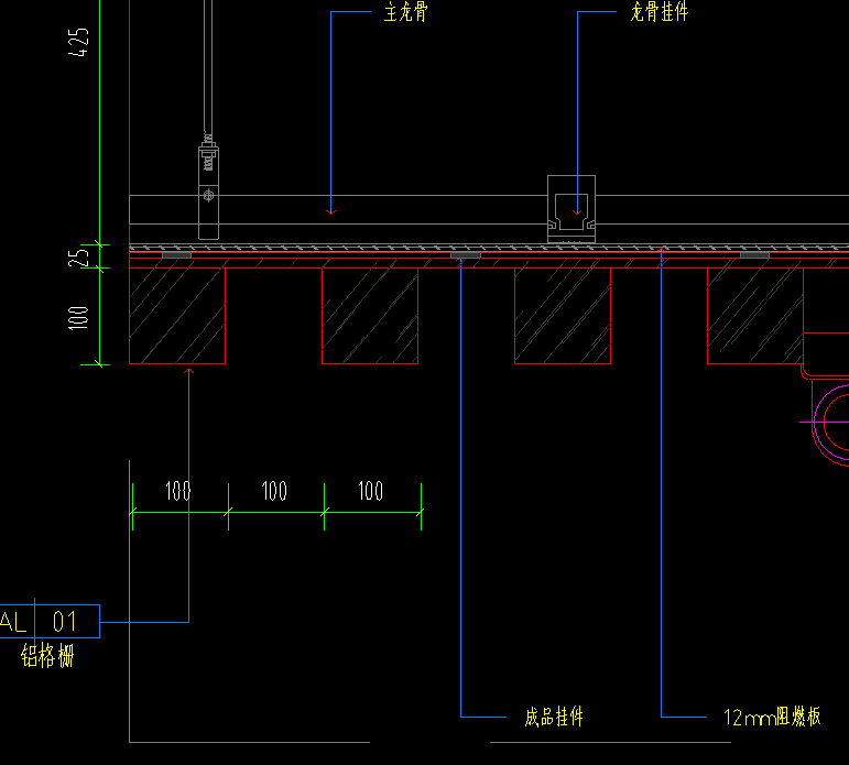
请问这个吊顶天棚怎么套定额,分开阻燃板吊顶+铝格栅?

全部回答
(5)
首答仅用{{minutesHtml}}
-
已采纳
建议阻燃板面层+格栅面层
2025-06-16 16:51:14
-
看图是的,还有轻钢龙骨子目
2025-06-16 16:51:28
-
阻燃板基层,铝方通吊顶(铝格栅)
2025-06-16 16:52:19
-
很少见阻燃板吊顶+铝格栅的工艺做法,如果这样做,轻钢龙骨要套石膏板吊顶的龙骨,把石膏板换成阻燃板,铝格栅如果往阻燃板上安装没有成熟的工艺做法。
2025-06-16 16:54:19
-
理解是对的
2025-06-16 16:59:17






还有0条追问正在审核中,请稍后回来查看