-
糖糖
2025-03-22 16:06:16
|
辽宁
土建
|
236查看
1回答
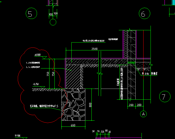
各位大神请问一下这土方应该怎么算

全部回答
(1)
首答仅用{{minutesHtml}}
-
基槽土方(槽宽600+2*工作面)*深*槽长
首次提交 2025-03-22 16:11:12 最近修改2025-03-22 16:12:12 (修改过1次)






还有0条追问正在审核中,请稍后回来查看