-
21434
2024-11-19 17:31:15
|
河北
土建钢筋算量GGJ2013土建计量GTJ
|
281查看
4回答
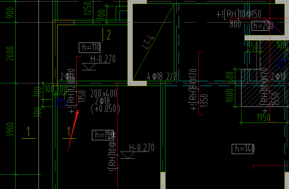
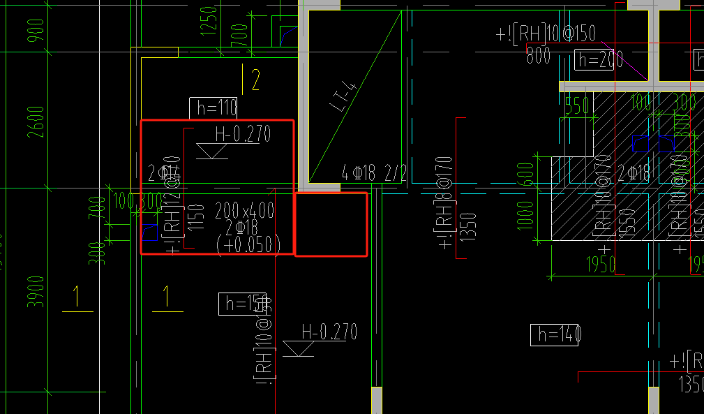
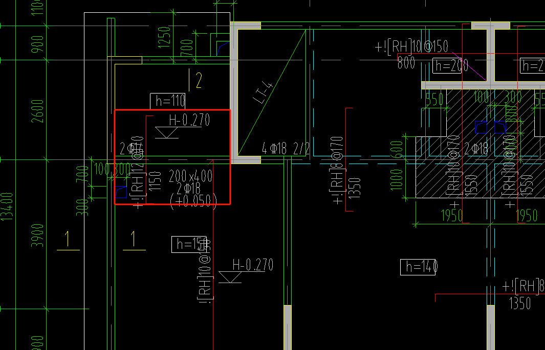
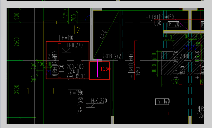
板负筋的布置范围,下图1这根负筋的布置范围是图2还是图3.依据是?



全部回答
(4)
首答仅用{{minutesHtml}}
-
已采纳
按图三布置,然后图二的右下方按左边的负筋长度定义布置负筋
这种设计可以说是不完善的
2024-11-19 17:34:56
-
是图一范围的,要保证支座周圈都有负筋的
2024-11-19 17:33:15
-

2024-11-19 17:43:17
-
分两部分布置负筋,两边有板的按设计长度布置,只有一边有板的部位,没有板那一边长度改为0
2024-11-19 17:45:24






还有0条追问正在审核中,请稍后回来查看