-
零零零零
2024-10-30 17:22:39
|
江苏
土建土建计量GTJ
|
444查看
3回答
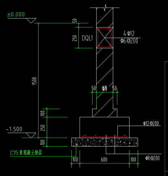
在基础层里,基础为独立基础+条形基础
条形基础上是有墙的,已建立(仅在条形基础上有)

请问独立基础上,是否要连接墙

2024-10-30 17:25:53 补充
模型里建立成这样:如下所示

全部回答
(3)
首答仅用{{minutesHtml}}
-
已采纳
看平面图中墙的走向,是不是通过独立基础顶的。
你的补图,墙要入独立基础顶的。
首次提交 2024-10-30 17:25:48 最近修改2024-10-30 17:26:49 (修改过1次)
-
图一是条基,图二是独基
2024-10-30 17:24:51
-
独立基础上是柱子,没有墙
首次提交 2024-10-30 17:26:21 最近修改2024-10-30 17:26:41 (修改过1次)






还有0条追问正在审核中,请稍后回来查看