-
这怎么玩?
2024-09-12 08:52:31
|
海南
土建
|
299查看
1回答
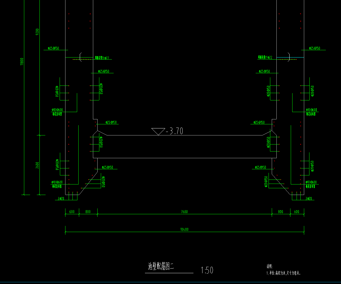
问一下,这种工作井池壁钢筋我要怎么做呢?

全部回答
(1)
首答仅用{{minutesHtml}}
-
这是沉井吧,你要算量吗?

首次提交 2024-09-12 08:54:58 最近修改2024-09-12 08:57:45 (修改过1次)






还有0条追问正在审核中,请稍后回来查看