-
煤球不黑
2024-07-22 15:24:04
|
河北
安装预算安装算量GQI
|
239查看
4回答
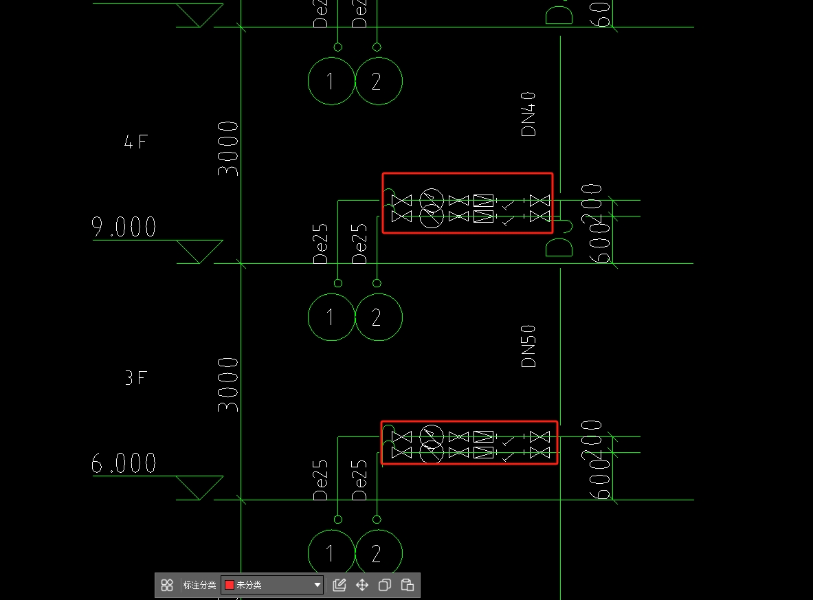
请问这个红色框里面的管径是多大的,与立管的关系是怎么样的?

全部回答
(4)
首答仅用{{minutesHtml}}
-
De25
2024-07-22 15:24:59
-
如果没有特别标注按De25的算呗,只可能比De25小,不可能比De25大
2024-07-22 15:25:45
-
De25, 与立管关系需要查看平面布置图的标高
2024-07-22 15:26:12
-
(De25)与立管连接的地方要变径。
你一共两个,全部画框,让人怎么分析?画一个框,留一个不画框,可以对比看清楚。
2024-07-22 15:51:46






还有0条追问正在审核中,请稍后回来查看