-
梦之男
2024-06-15 15:20:10
|
广东
土建
|
331查看
3回答
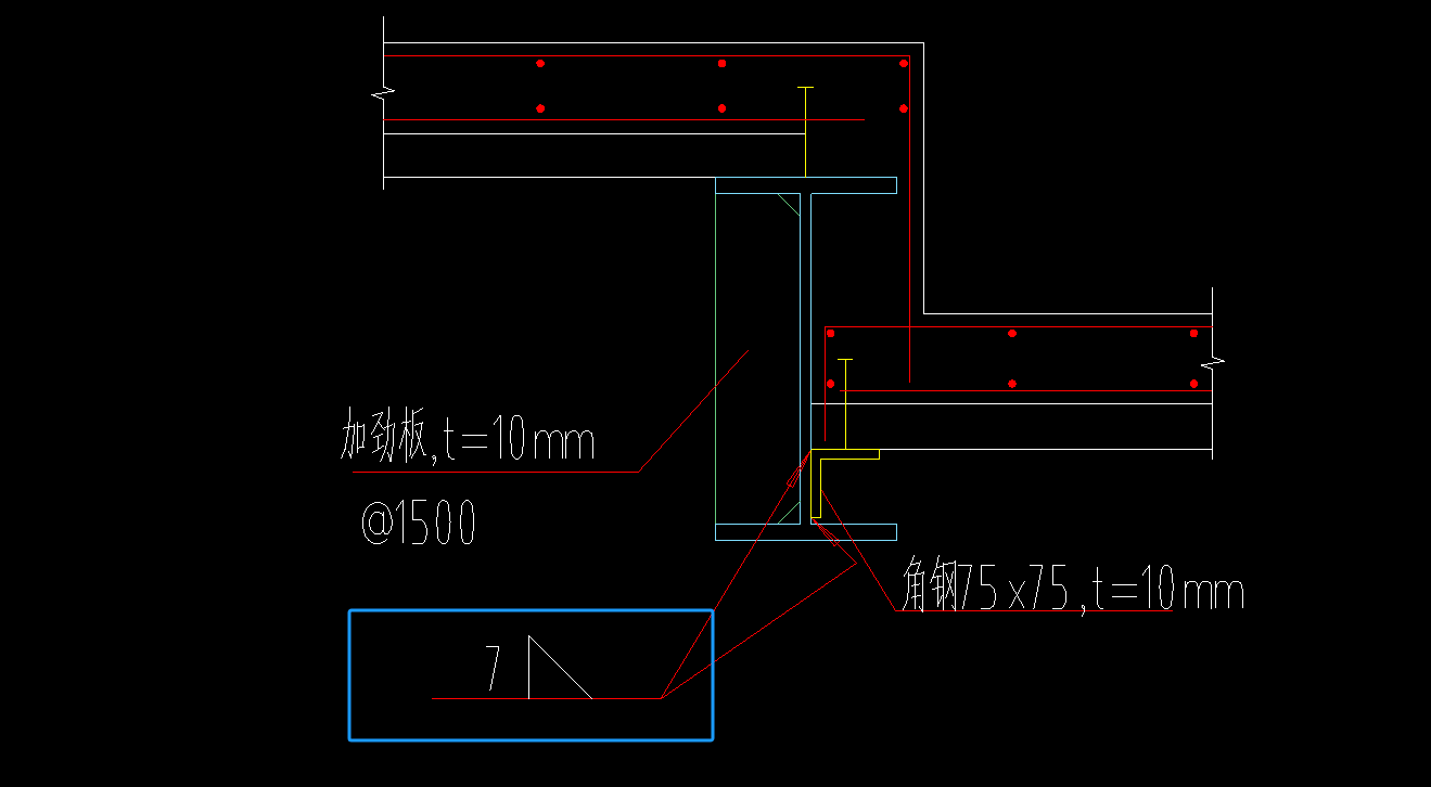
请问这个是什么意思?

全部回答
(3)
首答仅用{{minutesHtml}}
-
已采纳

2024-06-15 15:21:11
-
焊缝形式,数字是焊缝高度
2024-06-15 15:21:13
-
角焊焊缝高度7mm
2024-06-15 15:22:31






还有0条追问正在审核中,请稍后回来查看