软件下载
线下培训
软件教程
智能客服
购买咨询
建筑课堂
答疑解惑
新干线头条
资料下载
技能大赛
答疑专家入驻
课程讲师入驻
行业媒体入驻
设计专区
造价专区
施工专区
联系我们
合作推广
隐私政策
匿名用户 2024-05-07 11:29:28 | 山东 土建 | 283查看 1回答
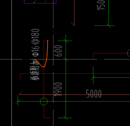
这种筏板顶部附加筋怎么根据支座线画?
我的答案 答题人必看《优秀回答指南》
asfsdfsadfdsf
补充或更正我的问题
完善我的答案 答题人必看 《优秀回答指南》
全部回答 (1) 首答仅用{{minutesHtml}}
*Q* 专家
答题: 2642 被赞: 771
用面筋绘制,自定义范围
2024-05-07 11:37:55
筏板配筋
意思是筏板底筋是c12-150,x和y方向,面筋x方向c14-150y方向c14-140?布置?
筏板基础配筋
图中的筏板基础那些是筏板主筋哪些是筏板负筋
筏板配筋识图
如图所示,筏板本身配有面筋,篮框范围内的板面筋是不是附加了c12-200的面筋,然后又附加了c18-200的面筋,我这样理解对吗?
筏板怎么配筋
2021-03-01 16:10:18 补充是这样嘛
筏板配筋问题
请问 板底配筋b8-150 双层双向布置,板面钢筋为b32-150双层双向布置,板厚中部配筋b14-250双向钢筋网 这个要怎么布?算一下是五层钢筋吗?可以广联达示范一下吗,谢谢
如果没找到您想要的答案,试试直接提问吧!
尊敬的“{{nickname}}”,您好!
答疑解惑——建筑行业领先的互动问答平台
答疑解惑——建筑业(造价行业)领先的互动问答平台
您的问题已发布您的回答已提交
大多数问题会在7分钟内获得回答,感谢您的耐心等待
恭喜获得答题积分奖励,帮助他人,成就自己。
采纳优质答案,更可获得积分,兑换礼品哦!
高质量答案更易被采纳,获得额外高额积分奖励!
专家榜
数据更新时间 : 2026-03-06
天降福运!积分,经验值等福利在等着你哟,快来签到吧
还有0条追问正在审核中,请稍后回来查看