-
桃醉
2024-02-12 14:21:14
|
四川
土建
|
1260查看
5回答
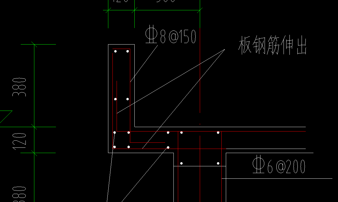
板钢筋伸出怎么设置

全部回答
(5)
首答仅用{{minutesHtml}}
-
多板绘制面筋(垂直长在属性弯折中输入)
首次提交 2024-02-12 14:23:38 最近修改2024-02-12 14:23:50 (修改过1次)
-
用异性挑檐定义
2024-02-12 14:52:03
-
可以用异形栏板或异形挑檐或自异形线来定义并画图处理.
2024-02-12 15:37:32
-
板受力筋的属性中可以设置左或右弯折长度。
首次提交 2024-02-12 16:43:57 最近修改2024-02-12 16:44:11 (修改过1次)
-
用板及栏板分别设置,挑出部分的底面筋同内板一起布置,底筋不用按图纸这样弯上,栏板垂直钢筋会计算;面筋在定义时,按下例这样定义左或右弯折长度可以,并同同板一起用面筋或跨板筋布置


2024-02-13 09:59:57






还有0条追问正在审核中,请稍后回来查看