软件下载
线下培训
软件教程
智能客服
购买咨询
建筑课堂
答疑解惑
新干线头条
资料下载
技能大赛
答疑专家入驻
课程讲师入驻
行业媒体入驻
设计专区
造价专区
施工专区
联系我们
合作推广
隐私政策
安稳 2024-02-06 09:25:24 | 江西 土建 | 628查看 1回答
我的答案 答题人必看《优秀回答指南》
asfsdfsadfdsf
补充或更正我的问题
完善我的答案 答题人必看 《优秀回答指南》
全部回答 (1) 首答仅用{{minutesHtml}}
陈工 铂金专家
答题: 211112 被赞: 51050
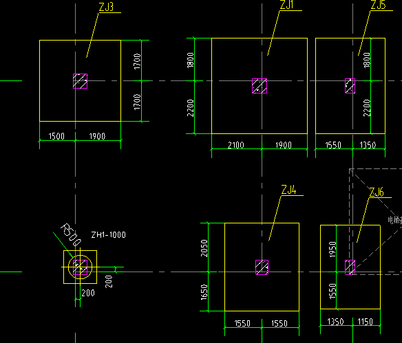
看设计图标高确定,一般是连接柱的。
2024-02-06 09:27:48
这是基础梁的主梁和次梁还是基础梁和基础联系梁?连接独立基础还是柱?
基础联系梁 没有连接基础连接柱 在地下 这也是基础联系梁吗
2023-04-14 10:12:59 补充
jkl和jl一个用梁基础联系梁,一个用基础梁吗,都是连接框架柱还是
请问在基础层JKL跟柱连接应该用框架梁还是基础梁
我再负一层画了柱子,又在基础层画了柱子并且调好了标高,独立基础怎么和柱连接?
如果没找到您想要的答案,试试直接提问吧!
尊敬的“{{nickname}}”,您好!
答疑解惑——建筑行业领先的互动问答平台
答疑解惑——建筑业(造价行业)领先的互动问答平台
您的问题已发布您的回答已提交
大多数问题会在7分钟内获得回答,感谢您的耐心等待
恭喜获得答题积分奖励,帮助他人,成就自己。
采纳优质答案,更可获得积分,兑换礼品哦!
高质量答案更易被采纳,获得额外高额积分奖励!
专家榜
数据更新时间 : 2026-03-06
天降福运!积分,经验值等福利在等着你哟,快来签到吧
还有0条追问正在审核中,请稍后回来查看