软件下载
线下培训
软件教程
智能客服
购买咨询
建筑课堂
答疑解惑
新干线头条
资料下载
技能大赛
答疑专家入驻
课程讲师入驻
行业媒体入驻
设计专区
造价专区
施工专区
联系我们
合作推广
隐私政策
小小昕 2024-01-15 21:14:09 | 四川 土建 | 954查看 3回答
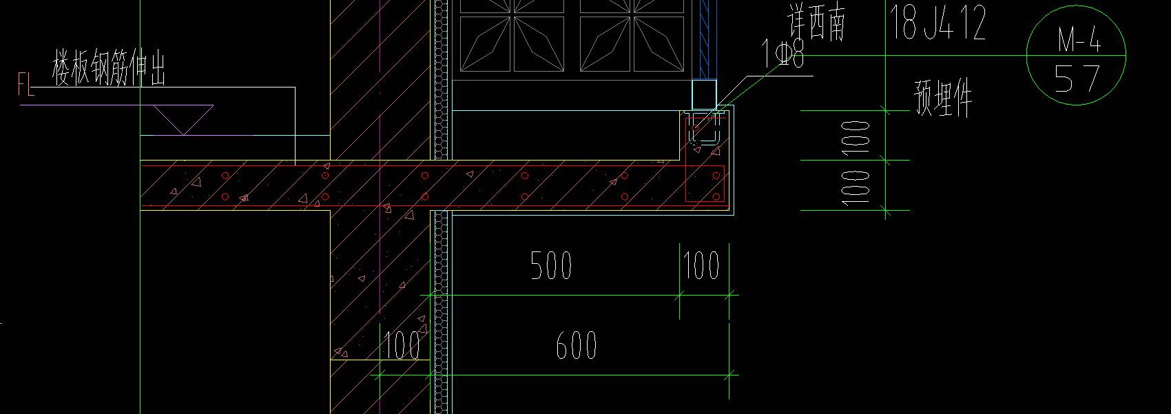
如图,大板只有底筋➕负筋。但是小板节点图是双网双向的
请问是图纸错误么?还是说小板也只需要布置底筋就行了
我的答案 答题人必看《优秀回答指南》
asfsdfsadfdsf
补充或更正我的问题
完善我的答案 答题人必看 《优秀回答指南》
全部回答 (3) 首答仅用{{minutesHtml}}
bain-wei 专家
答题: 8354 被赞: 3174
没问题啊!负筋伸出去一样的
2024-01-15 21:16:57
天山雪豹 铂金专家
答题: 146886 被赞: 19952
按设计布置
2024-01-15 21:17:53
陈工 铂金专家
答题: 211112 被赞: 51050
悬挑板,主筋是面筋,是负筋类型的。不是底筋受力的。
2024-01-15 21:21:21
请问这个钢筋应该怎么布置
请问这个是双网双向的板筋么,如果不是 应该怎么布置呢2024-01-02 18:28:16 补充坡屋面的板筋
请问这个节点应该用什么构件画?钢筋应该怎么输入?
请问这个砌体墙加压顶这节点钢筋怎么布置吗
请问这个附加钢筋怎么布置的?
请问这种折板节点怎么处理,折板钢筋是楼板钢筋延伸出来的。
如果没找到您想要的答案,试试直接提问吧!
尊敬的“{{nickname}}”,您好!
答疑解惑——建筑行业领先的互动问答平台
答疑解惑——建筑业(造价行业)领先的互动问答平台
您的问题已发布您的回答已提交
大多数问题会在7分钟内获得回答,感谢您的耐心等待
恭喜获得答题积分奖励,帮助他人,成就自己。
采纳优质答案,更可获得积分,兑换礼品哦!
高质量答案更易被采纳,获得额外高额积分奖励!
专家榜
数据更新时间 : 2026-03-06
天降福运!积分,经验值等福利在等着你哟,快来签到吧
还有0条追问正在审核中,请稍后回来查看