-
加
2024-01-15 13:56:01
|
河北
土建
|
224查看
1回答
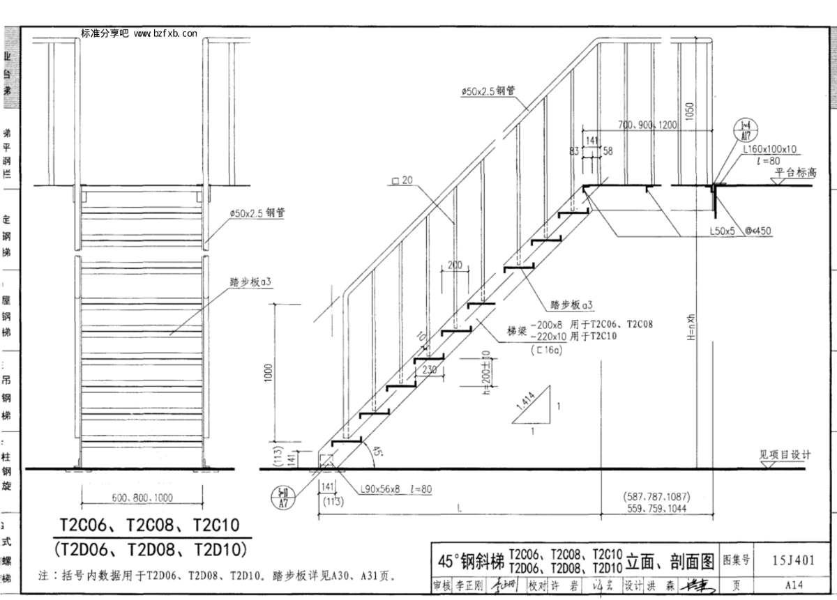
这个钢梯好几型号,应该怎么选?

全部回答
(1)
首答仅用{{minutesHtml}}
-
根据宽度,高度等选择
2024-01-15 14:00:10






还有0条追问正在审核中,请稍后回来查看